Descrizione:
Ampio Appartamento su Due Livelli in Vendita â€" Robassomero (TO)
Spazi Generosi â€" Doppi Ingressi â€" A soli 30 km da Torino
In una delle zone più verdi e tranquille della cintura nord di Torino, a Robassomero, proponiamo in vendita una spaziosa abitazione su due livelli, ideale per chi cerca ampiezza, indipendenza e comfort in un contesto naturale e rilassante.
Una vera oasi di pace, immersa nel verde, con sentieri per passeggiate ed escursioni a due passi da casa. La posizione strategica garantisce tranquillità senza rinunciare alla comodità dei collegamenti rapidi con Torino e i principali centri della zona.
Caratteristiche principali:
â€" Libera su tre lati, con eccellente esposizione e luminosità naturale
-Doppi ingressi indipendenti: perfetta anche per creare due unità abitative distinte
-Immobile in ottime condizioni, pronto da abitare
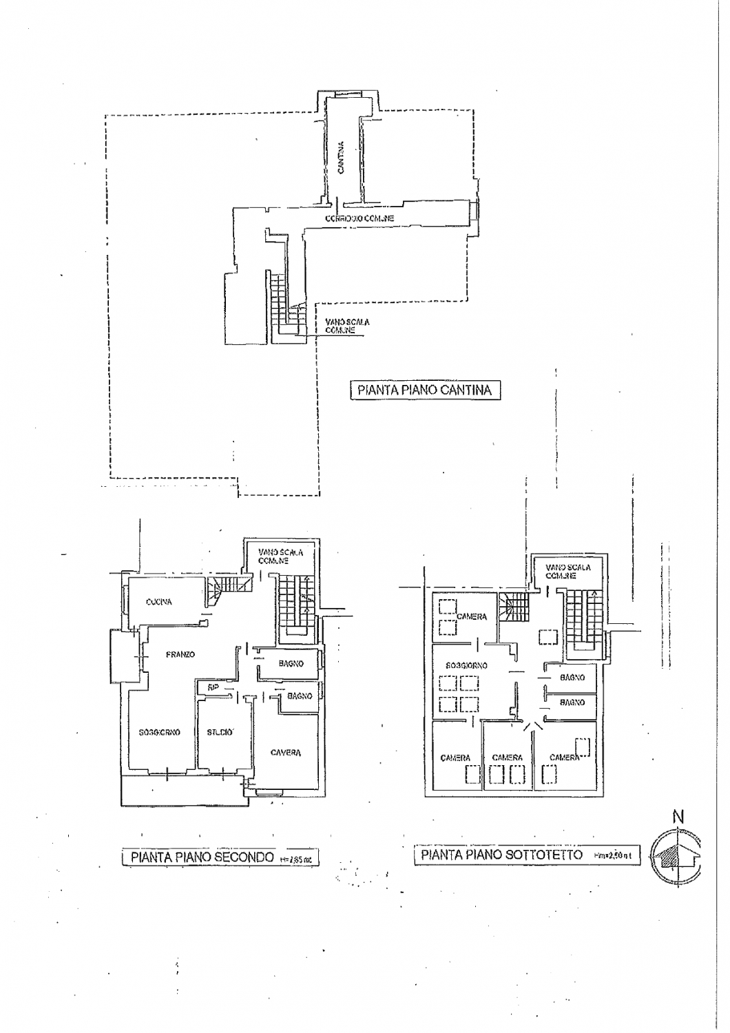
Composizione interna:
Piano Principale:
-Ingresso
-Soggiorno
-Sala da pranzo
-Cucina abitabile
-2 camere da letto
-2 bagni
-Ripostiglio
-2 balconi
Piano Mansardato (con ingresso indipendente):
-Soggiorno
-4 camere da letto di varie dimensioni
-2 bagni
Completano la proprietà :
-Cantina al piano interrato
-Doppio posto auto scoperto nel cortile condominiale
-Giardinetto privato ad uso orto: ideale per chi ama il verde o coltivare prodotti propri
Opzione Extra (non inclusa nel prezzo):
Due ampi locali con bagno al piano seminterrato (tot. 75 mq), acquistabili separatamente a €18.000 â€" ideali come magazzino, laboratorio o spazio hobby.
Spacious Two-Level Apartment for Sale â€" Robassomero (TO)
Generous Living Space â€" Dual Entrances â€" Just 30 km from Turin
Located in one of the greenest and most peaceful areas in the northern outskirts of Turin, in Robassomero, we offer for sale a spacious two-level home, ideal for those seeking ample space, independence, and comfort in a relaxing, natural setting.
A true oasis of peace surrounded by nature, with walking and hiking trails just steps from your door. Its strategic location offers tranquility without sacrificing fast connections to Turin and other key towns in the area.
Key Features:
-Free on three sides, with excellent exposure and plenty of natural light
-Two independent entrances â€" perfect for creating two separate living units
-Property in excellent condition, move-in ready
Interior Layout:
Main Floor:
-Entrance
-Living room
-Dining room
-Eat-in kitchen
-2 bedrooms
-2 bathrooms
-Storage room
-2 balconies
Attic Floor (with separate entrance):
-Living area
-4 bedrooms of various sizes
-2 bathrooms
Additional Features:
-Private cellar in the basement
-Two outdoor parking spaces in the shared courtyard
-Private garden area, currently used as a vegetable garden â€" perfect for nature lovers or home growers
Optional Add-on (not included in the sale price):
Two large rooms with bathroom in the semi-basement (total 75 sqm), available for purchase separately at €18,000 â€" ideal as a storage space, workshop, or hobby room.
For information and appointments, contact Ariana Tabatabai at