home page > Annunci immobiliari in Italia > Puglia > Bari > Altamura > Negozi uffici capannoni in vendita > Scheda immobile

Negozi uffici capannoni in vendita a Altamura

COMPILA IL MODULO SOTTOSTANTE PER RICEVERE MAGGIORI INFORMAZIONI







Invia la richiesta ad altre agenzie
Accetto il trattamento dei miei dati



Barone immobiliare altamura e matera

Piazza raffaele laudati,14 -matera, via dante 11/d
70022 Altamura (BA)

080.3143914

Altamura
Prezzo: € 550.000
G
4
650



Descrizione:
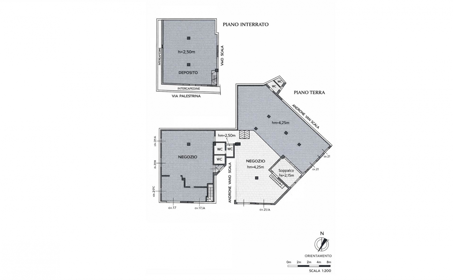
In posizione strategica, a ridosso di via parisi, proponiamo in vendita importante locale commerciale di circa 500 mq complessivi, ideale per attività commerciali, showroom, ristorazione o servizi al pubblico.l'immobile si sviluppa su più livelli ed è cosù composto:piano terra: ampia superficie commerciale con 10 vetrine espositive su strada, che garantiscono massima visibilità e luminosità;soppalco regolarmente accessibile, utilizzabile come area operativa, uffici o esposizione;piano interrato ad uso magazzino/deposito, comodamente collegato internamente.il locale è dotato di predisposizione per canna fumaria, rendendolo particolarmente adatto anche ad attività di ristorazione o somministrazione.la zona è densamente abitata e ben servita, con scuole, farmacie e numerose attività commerciali nelle immediate vicinanze, oltre a un ottimo passaggio pedonale e veicolare.soluzione versatile, di ampia metratura e forte impatto commerciale, ideale per chi cerca visibilità, spazi generosi e una posizione di sicuro interesse.le immagini non sono reali classe energetica: g




Caratteristiche immobile:
Codice inserzione: 1770691926
Rif. Annuncio: BARONE003678
Provincia: Bari
Comune: Altamura
Superficie (Mq) : 650 Mq.
Tipo immobile: Negozi uffici capannoni
Bagni: 4

Costi:
Prezzo € 550.000


Efficienza energetica:
Classe energetica: G