080.3143914
Descrizione:
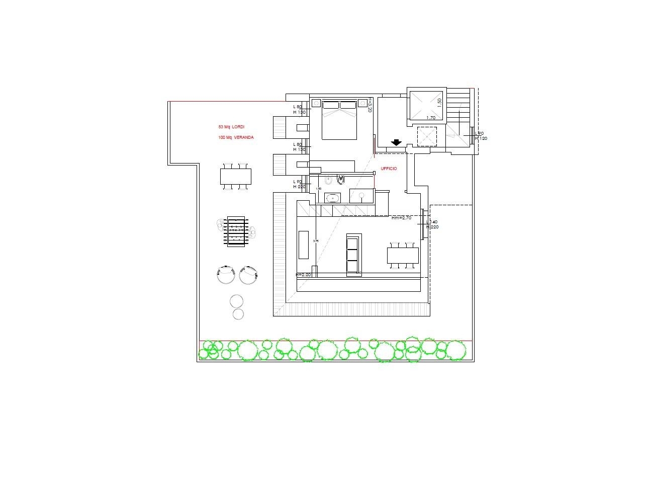
In via selva, in posizione periferica ma strategica, all'interno di un elegante edificio di nuova costruzione casa green, proponiamo una soluzione estremamente versatile, pronta consegna, ideale sia come ufficio professionale di rappresentanza sia come abitazione moderna e indipendente.l'unità, accatastata ad uso ufficio ma perfettamente fruibile come abitazione, sviluppa una superficie interna di 85 mq con ambienti ampi e ben organizzati: un grande open space luminoso e adattabile a diverse esigenze, una camera e un bagno. Le altezze interne, che variano dai 2,20 m ai 3,20 m, conferiscono ariosità e carattere agli spazi, valorizzandone l'architettura contemporanea.elemento distintivo della proprietà è l'ampio terrazzo esclusivo di circa 100 mq, uno spazio esterno di grande impatto, perfetto per accogliere clienti, creare un'area relax o vivere momenti all'aperto in totale privacy. A completare la soluzione, un posto auto di proprietà, indispensabile sia per l'uso professionale sia residenziale.l'immobile è di nuova costruzione e viene consegnato da rifinire, offrendo la possibilità di personalizzare pavimenti e rivestimenti fino a 25 eu./mq, cosù da modellare gli spazi secondo il proprio stile e le proprie necessità. L'edificio è concepito secondo i più moderni standard di efficienza energetica, con impianto fotovoltaico indipendente da 1,3 kw, pompa di calore per la produzione di acqua calda sanitaria e infissi in fibra ad alta efficienza, garanzia di comfort e contenimento dei consumi.ulteriore plus di grande valore è la possibilità di acquistare anche l'appartamento mansardato adiacente, collegando le due unità e dando vita a una soluzione unica, ampia e prestigiosa, oppure procedere con l'acquisto separato, mantenendo massima flessibilità d'investimento.una proposta moderna, efficiente e altamente adattabile, pensata per chi cerca uno spazio rappresentativo, funzionale e pronto a valorizzarsi nel tempo. Classe energetica: a4
| Codice inserzione: | 1768359396 |
| Rif. Annuncio: | BARONE003658 |
| Provincia: | Bari |
| Comune: | Altamura |
| Superficie (Mq) : | 85 Mq. |
| Tipo immobile: | Negozi uffici capannoni |
| Stato immobile: | nuovo |
| Bagni: | 1 |
| Terrazze: | 1 |
| Prezzo | € 260.000 |