home page > Annunci immobiliari in Italia > Puglia > Bari > Altamura > Terreni in vendita > Scheda immobile

Terreni in vendita a Altamura

COMPILA IL MODULO SOTTOSTANTE PER RICEVERE MAGGIORI INFORMAZIONI







Invia la richiesta ad altre agenzie
Accetto il trattamento dei miei dati



Barone immobiliare altamura e matera

Piazza raffaele laudati,14 -matera, via dante 11/d
70022 Altamura (BA)

080.3143914

Altamura
Prezzo: € 1.100.000
2771



Descrizione:
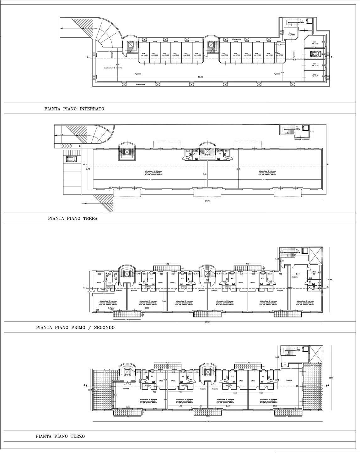
In una delle posizioni più strategiche e visibili dell'area murgiana, direttamente affacciato sulla strada statale 96 gravinaaltamura, proponiamo in vendita lotto edificabile a destinazione servizi commerciali (zona urbanistica s2a) della superficie complessiva di 2.771 mq.si tratta di un'area di assoluto pregio commerciale, ideale per chi intende realizzare un intervento a forte impatto, destinato a strutture commerciali, direzionali e di servizio di medio-grandi dimensioni, in un contesto caratterizzato da intenso traffico veicolare e massima esposizione.il lotto è già supportato da uno studio di fattibilità progettuale avanzato, che ne conferma le importanti potenzialità edificatorie, con una volumetria complessiva pari a 8.313 mc e una distribuzione degli spazi studiata per garantire massima flessibilità funzionale e adattabilità alle più diverse esigenze imprenditoriali.l'ipotesi progettuale prevede la realizzazione di un edificio articolato su più livelli: un piano interrato di circa 800 mq, ideale per autorimessa, depositi e locali tecnici; un piano terra di 836 mq perfettamente vocato ad attività commerciali, servizi e showroom ad alta visibilità; e livelli superiori destinati a uffici direzionali, con circa 800 mq ciascuno al primo e secondo piano, fino a un terzo piano di circa 750 mq, arricchito da verandine e balconi che conferiscono pregio, rappresentatività e comfort agli ambienti di lavoro.l'intero impianto è pensato per consentire sia una utilizzazione unitaria sia una suddivisione in più unità autonome, rendendo l'intervento particolarmente appetibile anche in ottica di investimento a reddito.la posizione fronte strada, la visibilità eccezionale, la facilità di accesso, la possibilità di realizzare ampie aree parcheggio e la conformazione pianeggiante del lotto rendono questa proposta un'opportunità rara e difficilmente replicabile nel mercato locale.l'area si presta perfettamente alla realizzazione di strutture commerciali, centri servizi, poli direzionali, uffici professionali, attività aperte al pubblico, sedi aziendali di rappresentanza e centri commerciali, intercettando un bacino di utenza ampio e in continua crescita.in sintesi, un lotto pronto per essere sviluppato, con numeri importanti, progetto già verificato e una collocazione che garantisce visibilità, valore e redditività nel tempo, riducendo in modo significativo tempi, costi e incertezze della fase preliminare. Classe energetica: non soggetto




Caratteristiche immobile:
Codice inserzione: 1771210325
Rif. Annuncio: BARONE003656
Provincia: Bari
Comune: Altamura
Superficie (Mq) : 2771 Mq.
Tipo immobile: Terreni

Costi:
Prezzo € 1.100.000


Efficienza energetica:
Classe energetica: Immobile non soggetto all'obbligo di certificazione