home page > Annunci immobiliari in Italia > Puglia > Bari > Capurso > appartamenti in vendita > Scheda immobile

Appartamento in vendita a Capurso

COMPILA IL MODULO SOTTOSTANTE PER RICEVERE MAGGIORI INFORMAZIONI







Invia la richiesta ad altre agenzie
Accetto il trattamento dei miei dati



Affiliato tecnocasa: studio casamassima d.i.

Corso vittorio emanuele 1/3
70010 Casamassima (BA)

0804537016    0809242983

Capurso
Prezzo: € 180.000
In definizione
3
1
90
99



Descrizione:
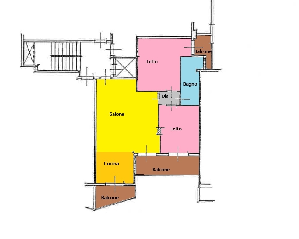
Nel comune di Capurso, proponiamo in vendita un appartamento di 90 mq situato a un piano alto di un edificio moderno, costruito nel 2000. L'immobile è servito da ascensore e offre un ambiente accogliente e funzionale. La disposizione interna comprende due camere da letto, ideali per una famiglia o per chi desidera uno spazio aggiuntivo per ospiti o studio. Il soggiorno, luminoso e ben distribuito, si affaccia su uno dei tre balconi, garantendo un'ottima ventilazione e luce naturale. La cucina è separata, offrendo praticità e comfort. Il bagno è dotato di tutti i servizi essenziali. Completa la proprietà un box auto, che aggiunge valore e comodità. L'appartamento è inoltre dotato di un sistema di allarme con collegamento telefonico, assicurando tranquillità e sicurezza, videocitofono, zanzariere, tende da sole nuove, predisposizione aria condizionata. Una soluzione abitativa che coniuga spazio, funzionalità e comfort in una posizione strategica. Ape in valutazione

Servizi nei pressi dell'immobile:
Trasporti pubblici, supermercato, scuole, farmacia, bar, banca, chiesa.




Caratteristiche immobile:
Codice inserzione: 1758618453
Rif. Annuncio: capurso
Provincia: Bari
Comune: Capurso
Superficie (Mq) : 90 Mq.
Tipo immobile: Appartamento
Stato immobile: usato
Anno costruzione/ristrutturazione: 2000
Piano: Ultimo piano
Camere: 3
Stato al rogito: Libero
Garage: Singolo
Bagni: 1
Terrazze: 3

Costi:
Prezzo € 180.000
Spese condominiali: € 63


Efficienza energetica:
Classe energetica: In fase di definizione
Indice di prestazione energetica (EPgl): 1 kWh/mq annui
Riscaldamento: autonomo
Tipologia riscaldamento: gas