home page > Annunci immobiliari in Italia > Puglia > Bari > Casamassima > Negozi uffici capannoni in affitto > Scheda immobile

Negozi uffici capannoni in affitto a Casamassima

COMPILA IL MODULO SOTTOSTANTE PER RICEVERE MAGGIORI INFORMAZIONI







Invia la richiesta ad altre agenzie
Accetto il trattamento dei miei dati



Affiliato tecnocasa: studio casamassima d.i.

Corso vittorio emanuele 1/3
70010 Casamassima (BA)

0804537016    0809242983

Casamassima
Prezzo: € 860
In definizione
2
1
175
Piano terra



Descrizione:
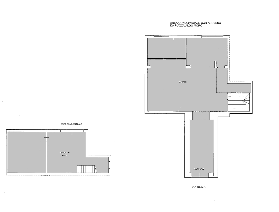
Nel cuore del comune di Casamassima, si propone in locazione un ampio negozio di 175 mq situato al piano terra con doppio ingresso e canna fumaria. Questo spazio commerciale, caratterizzato da un ampio locale di crica 125mq al piano terra e circa 50mq al piano interrato, offre la versatilità necessaria per adattarsi a diverse tipologie di attività. La presenza di un bagno interno garantisce praticità e comfort per il personale e i clienti. L'immobile è dotato di un sistema di aria condizionata, assicurando un ambiente piacevole in ogni stagione. La posizione strategica e la facilità di accesso rendono questo negozio una scelta ideale per chi desidera avviare o espandere la propria attività in una zona ben servita e frequentata.

Servizi nei pressi dell'immobile:
Supermercato, bar, edicola, chiesa.




Caratteristiche immobile:
Codice inserzione: 1770722975
Rif. Annuncio: via roma
Provincia: Bari
Comune: Casamassima
Superficie (Mq) : 175 Mq.
Tipo immobile: Negozi uffici capannoni
Stato immobile: usato
Piano: Piano terra
Camere: 2
Stato al rogito: Libero
Bagni: 1

Costi:
Prezzo € 860


Efficienza energetica:
Classe energetica: In fase di definizione