home page > Annunci immobiliari in Italia > Puglia > Barletta-Andria-Trani > Andria > Negozi uffici capannoni in vendita > Scheda immobile

Negozi uffici capannoni in vendita a Andria

COMPILA IL MODULO SOTTOSTANTE PER RICEVERE MAGGIORI INFORMAZIONI







Invia la richiesta ad altre agenzie
Accetto il trattamento dei miei dati



Immobiliare castello

Via principe amedeo 2/b
76123 Andria (BT)

0883594973    3483642418    Riferimenti: Riccardo Lomuscio

Andria
Prezzo: € 115.000
G
160



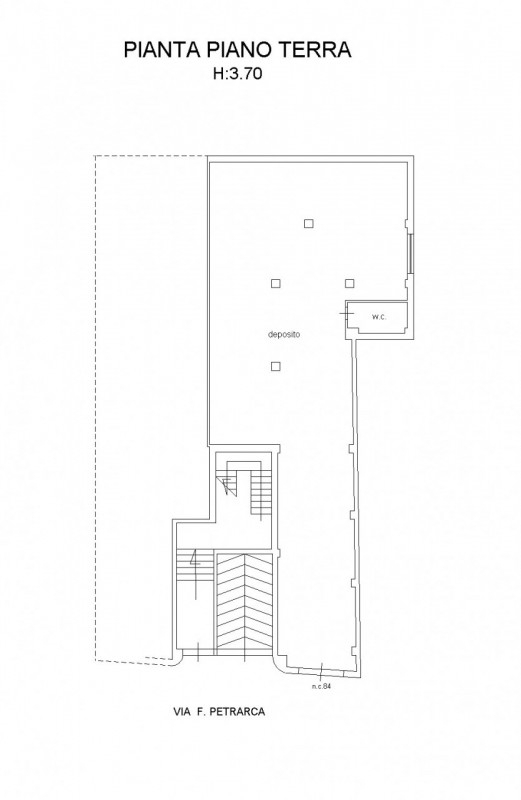
Descrizione:
In via francesco petrarca, proponiamo in vendita locale/deposito con superficie di circa mq 160. Il locale dispone di una serranda con affaccio su strada.




Caratteristiche immobile:
Codice inserzione: 1769768310
Rif. Annuncio: L043
Provincia: Barletta-Andria-Trani
Comune: Andria
Superficie (Mq) : 160 Mq.
Tipo immobile: Negozi uffici capannoni

Costi:
Prezzo € 115.000


Efficienza energetica:
Classe energetica: G