home page > Annunci immobiliari in Italia > Puglia > Brindisi > San Donaci > Negozi uffici capannoni in vendita > Scheda immobile

Negozi uffici capannoni in vendita a San Donaci

COMPILA IL MODULO SOTTOSTANTE PER RICEVERE MAGGIORI INFORMAZIONI







Invia la richiesta ad altre agenzie
Accetto il trattamento dei miei dati



Abilio s.p.a.

Via galileo galilei 6
48018 Faenza (RA)

0289741561    0546046748    0546046747    Riferimenti: Abilio S.p.A.

San Donaci
Prezzo: € 14.763
133



Descrizione:
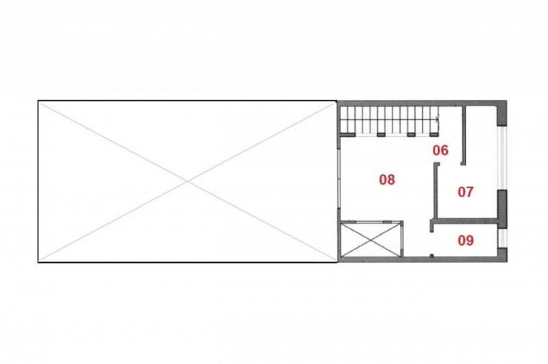
Quest'immobile viene venduto tramite asta online.vendesi locale commerciale sito a san donaci (br), via trieste 120. Il contesto è centrale e prossimo al centro storico del paese. La zona è urbanizzata, con parcheggi sufficienti e caratterizzata da edifici residenziali e attività commerciali. L'unità è parte di un edificio di non recente costruzione, oggetto nel 1991 di intervento con demolizione e ricostruzione in ampliamento di alcuni locali. Il fabbricato ha struttura portante in cemento armato con porzioni in muratura. Certificato di agibilità non ancora rilasciato.il negozio si trova al piano terra con accesso diretto dalla strada tramite portone metallico. E' costituito da sala esposizione, ufficio, disimpegno e deposito con wc. Al di sopra del deposito è stato realizzato un soppalco abusivo accessibile da scala, ove si trovano un ufficio, un bagno e un archivio. Finiture tradizionali. Pavimenti in gress e legno. Finestre in ferro ed alluminio. Porte in legno naturale. Impianto elettrico in canalette esterne. Impianto idrico allacciato. Fancoil nell'ufficio al piano terra. Aerazione e illuminazione sufficiente. L'immobile è libero e in discreto stato di manutenzione e conservazione. Beni mobili esclusi dalla vendita.difformita': il piano ammezzato è abusivo e dovrà essere rimosso o sanato con presentazione di permesso di costruire in sanatoria.superficie commerciale: 133 mq (soppalco incluso)piano terranegozio con servizi: 91,17 mqaltezza: 4,36 metri (area espositiva)altezza: 1,98 metri (sotto soppalco)piano ammezzatosoppalco da sanare: 28,70 mqaltezza: 1,90 metrilocale commerciale (nceu): foglio 18 particella 544 subalterno 3 c/1offerta minima: 14763 euro.quimmo.it: iniziativa tech del gruppo illimity specializzata nell'intermediazione digitale di beni immobili provenienti da tribunali, nuovi sviluppi immobiliari, financial institutions e libero mercato.da oltre 10 anni quimmo.it è il portale specializzato nella compravendita di immobili tramite asta giudiziaria. Il portale è infatti iscritto nel registro gestori della vendita telematica e nell'elenco dei siti web autorizzati allo svolgimento della pubblicità legale. Con quimmo puoi scegliere tra migliaia di immobili di ogni tipo e partecipare alle aste online per acquistare la soluzione più adatta alle tue esigenze.affidati all'esperienza decennale dei nostri esperti e richiedi l'assistenza gratuita per la presentazione e compilazione dell'offerta.contattaci subito.




Caratteristiche immobile:
Codice inserzione: 1771990899
Rif. Annuncio: 9512
Provincia: Brindisi
Comune: San Donaci
Superficie (Mq) : 133 Mq.
Tipo immobile: Negozi uffici capannoni
Stato immobile: usato

Costi:
Prezzo € 14.763


Efficienza energetica: