home page > Annunci immobiliari in Italia > Puglia > Foggia > San Severo > Rustici in vendita > Scheda immobile

Rustici in vendita a San Severo

COMPILA IL MODULO SOTTOSTANTE PER RICEVERE MAGGIORI INFORMAZIONI







Invia la richiesta ad altre agenzie
Accetto il trattamento dei miei dati



San severo

Via checchia rispoli 16
71016 San Severo (FG)

0882332403

San Severo
Prezzo: € 38.000
70



Descrizione:
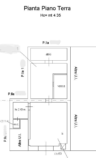
Zona via sicilia, proponiamo in vendita un ampio locale di 70mq con una porta d'ingresso larga, corredato di bagno e atrio retrostante. L'immobile, tipica casa con le volte a botte, gode di una buona luminosità. Ideale come cantina.




Caratteristiche immobile:
Codice inserzione: 1725493472
Rif. Annuncio: Cod. rif 3090979VRG
Provincia: Foggia
Comune: San Severo
Superficie (Mq) : 70 Mq.
Tipo immobile: Rustici

Costi:
Prezzo € 38.000


Efficienza energetica: