home page > Annunci immobiliari in Italia > Puglia > Lecce > Alezio > appartamenti in vendita > Scheda immobile

Appartamento in vendita a Alezio

COMPILA IL MODULO SOTTOSTANTE PER RICEVERE MAGGIORI INFORMAZIONI







Invia la richiesta ad altre agenzie
Accetto il trattamento dei miei dati



Gallipoli centro

Corso roma 134
73014 Gallipoli (LE)

0833262440

Alezio
Prezzo: € 40.000
3
105



Descrizione:
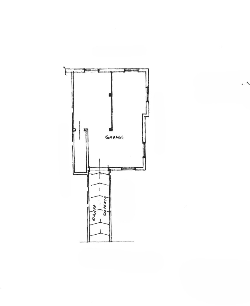
Proponiamo ampio garage di 105 mq, situato al piano seminterrato e facilmente accessibile tramite comoda rampa d?ingresso.l?immobile, grazie alle sue generose dimensioni, si presta non solo al parcheggio di più veicoli, ma anche come spazio per deposito, laboratorio o magazzino.ottima soluzione per chi cerca praticità e ampi spazi in zona alezio.curiosità?alezio (alytia in greco e messapico, aletium in latino; fino al 1873 chiamata villapicciotti) è un comune italiano di 5 668 abitanti[3] della provincia di lecce in puglia.situato nel versante occidentale del salento, nell'entroterra di gallipoli, dista 36,8 km dal capoluogo provinciale. La chiesa di santa maria della lizza fu edificata tra la seconda metà del xii e la prima metà del xiii secolo. L'edificio presenta una pianta a croce latina, con i bracci del transetto sporgenti. All'esterno, addossato alla facciata nord, carlo i d'angiò fece edificare un pronao turrito per scopi difensivi. Gli affreschi conservati all'interno risalgono ad epoche diverse e possono essere raggruppati in tre fasi principali, comprese tra il x e il xvi secolo. La chiesa conserva alcune tele di pregevole fattura, databili tra la fine del cinquecento e gli inizi del seicento, attribuite al gallipolino gian domenico catalano e alla sua scuola. Venne elevata a santuario nel 1950 dal vescovo nicola margiotta.chiesa della madonna addoloratal'inizio della costruzione della parrocchiale, dedicata alla madonna addolorata, risale al 1838 su progetto dell'architetto lorenzo turco. Fu portata a termine nel 1875 e sorge sulle fondamenta di un'antica costruzione risalente al xii secolo. L'attiguo orologio pubblico fu costruito tra il 1838 e il 1840.internola chiesa, a pianta a croce greca, presenta una copertura a botte decorata con stucchi; all'altezza del transetto si innalza una cupola circolare recante sui quattro pennacchi le raffigurazioni dei quattro evangelisti. Sulla cantoria, situata sopra la zona d'ingresso, è presente un organo a canne donato nel 1884 da vincenzo starace. Nella navata, entro piccole cappelle, sono posizionati i semplici altari di santa lucia, della crocifissione di gesù, di san giovanni battista e dell'immacolata. I due bracci del transetto accolgono gli altari dedicati all'addolorata, con pala della deposizione dalla croce, e a san pietro, con tela raffigurante il martirio di san pietro. Nei due bracci si aprono inoltre i cappelloni di san rocco e del santissimo sacramento.architetture civilipalazzo tafuripalazzo tafuri è una dimora signorile del xviii secolo. Esternamente si presenta con una lunga balconata e con lo stemma della famiglia tafuri, che rappresenta un albero di quercia con due fulmini, che campeggia sul portone di ingresso. Internamente le stanze sono con copertura a volta una diversa dall'altra, di cui una a croce di malta. Il palazzo ospita la sede del museo civico messapico. La via in cui si trova il palazzo è chiamata la via dei lacci.




Caratteristiche immobile:
Codice inserzione: 1763599113
Rif. Annuncio: Cod. rif 3276669VRG
Provincia: Lecce
Comune: Alezio
Superficie (Mq) : 105 Mq.
Tipo immobile: Appartamento
Camere: 3

Costi:
Prezzo € 40.000


Efficienza energetica: