home page > Annunci immobiliari in Italia > Puglia > Lecce > Casarano > Attività commerciali in vendita > Scheda immobile

Attività commerciali in vendita a Casarano

COMPILA IL MODULO SOTTOSTANTE PER RICEVERE MAGGIORI INFORMAZIONI







Invia la richiesta ad altre agenzie
Accetto il trattamento dei miei dati



Abilio s.p.a.

Via galileo galilei 6
48018 Faenza (RA)

0289741561    0546046748    0546046747    Riferimenti: Abilio S.p.A.

Casarano
Prezzo: € 251.449
830



Descrizione:
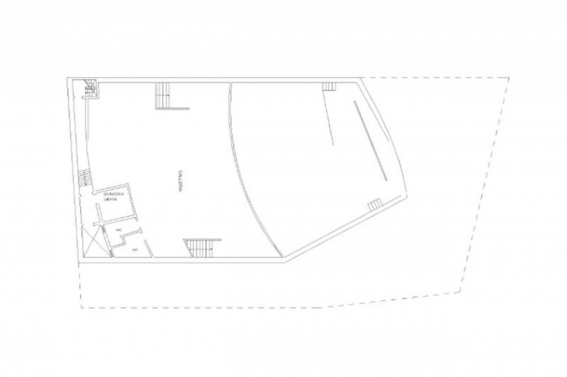
Quest'immobile viene venduto tramite asta online.vendesi cinema teatro sito a casarano (le), in via vecchia matino. Il bene, ubicato in zona centrale, è costituito da un fabbricato originario edificato negli anni '70 ed un ulteriore corpo di fabbrica, di recente costruzione, edificato in aderenza. L'immobile è composto al piano terra da un ampio locale adibito a sala teatro e proiezione cinematografica, con annessi servizi igienici e vani accessori quali hall, vano direzione, vano biglietteria, angolo bar, due scale di accesso al piano galleria (per un totale di 224 posti a sedere), la sala platea (con un totale di 308 posti a sedere), e due vani wc con anti. Sempre al piano terra, con accesso diretto da via vecchia matino è stato edificato un altro corpo di fabbrica, di recente costruzione, per la realizzazione di una seconda sala di proiezione, posta in posizione retrostante rispetto alla pubblica via, il tutto costituito da un'area filtro di ingresso, un corridoio, un atrio, una sala platea, due servizi igienici, un vano regia proiezione ed un vano scale per l'accesso al piano coperture. Completa la proprietà un cortile di pertinenza intercluso tra i due corpi di fabbrica. Il fabbricato originario si presenta in buone condizioni manutentive e conservative, mentre il nuovo fabbricato si presenta senza alcune opere di finitura edilizia ed impiantistica.immobile descritto in perizia allegata come 'lotto 7'.superficie: 830 mqpiena proprietà di:cinema (cf): foglio 20 - particella 2869 - subalterno 3 - cat. D/3offerta minima: 251449 euro.quimmo.it: iniziativa tech del gruppo illimity specializzata nell'intermediazione digitale di beni immobili provenienti da tribunali, nuovi sviluppi immobiliari, financial institutions e libero mercato.da oltre 10 anni quimmo.it è il portale specializzato nella compravendita di immobili tramite asta giudiziaria. Il portale è infatti iscritto nel registro gestori della vendita telematica e nell'elenco dei siti web autorizzati allo svolgimento della pubblicità legale. Con quimmo puoi scegliere tra migliaia di immobili di ogni tipo e partecipare alle aste online per acquistare la soluzione più adatta alle tue esigenze.affidati all'esperienza decennale dei nostri esperti e richiedi l'assistenza gratuita per la presentazione e compilazione dell'offerta.contattaci subito.




Caratteristiche immobile:
Codice inserzione: 1755226445
Rif. Annuncio: 14135
Provincia: Lecce
Comune: Casarano
Superficie (Mq) : 830 Mq.
Tipo immobile: Attività commerciali
Stato immobile: usato

Costi:
Prezzo € 251.449


Efficienza energetica: