Descrizione:
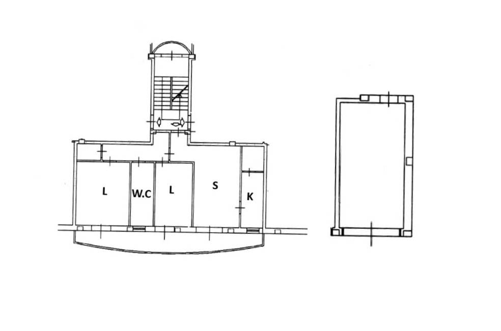
Rif. 1975 #myprojectcasa propone in vendita a martina franca, in via alessandro marinosci, appartamento arredato in ottime condizioni, situato in una zona ideale per chi desidera vivere a contatto con la natura senza rinunciare alla comodità dei principali servizi e alla vicinanza al centro urbano. L'immobile, posto al primo piano, sviluppa una superficie di circa 96 mq ed è composto da: ingresso in disimpegno, soggiorno, cucinotto con lavanderia, due camere da letto e bagno completo di doccia e vasca. Completa la proprietà box auto di 21 mq al piano terra.. La soluzione si presenta in ottime condizioni, pronta per essere abitata. Per immobili simili visita il sito myprojectcasa classe energetica: d