home page > Annunci immobiliari in Italia > Puglia > Taranto > Martina Franca > Case e ville indipendenti in vendita > Scheda immobile

Case e ville indipendenti in vendita a Martina Franca

COMPILA IL MODULO SOTTOSTANTE PER RICEVERE MAGGIORI INFORMAZIONI







Invia la richiesta ad altre agenzie
Accetto il trattamento dei miei dati



My project casa

Viale dei lecci n° 36
74015 Martina Franca (TA)

0039.0804859887    0039.080.485.98.87    00393288820191    Riferimenti: Semeraro Roberto

Martina Franca
Prezzo: € 219.000
A1
2
2
250
Ultimo piano



Descrizione:
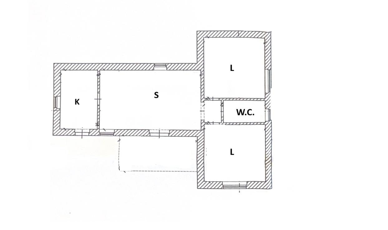
Rif. 1944 #myprojectcasa propone in vendita villa recentemente ristrutturata, in via villa castelli a martina franca, a circa 3 km dal centro. L'abitazione si sviluppa su una superficie di circa 100 mq, suddivisi in: luminoso soggiorno con camino, cucinotto, due camere da letto e bagno. Al piano inferiore si trova un ampio deposito di circa 150 mq, completo di box auto, vano tecnico e bagno, offrendo spazi funzionali e versatili. All'esterno, la proprietà è caratterizzata da: ampio piazzale, veranda panoramica ideale per momenti di relax e un giardino privato di circa 1.300 mq. La villa è stata oggetto di una ristrutturazione completa e curata nei minimi dettagli, pensata per garantire il massimo del comfort e dell'efficienza. è dotata di riscaldamento a pavimento, impianto fotovoltaico da 6 kw con sistema di accumulo energetico, soluzioni che assicurano bassi consumi e un'elevata sostenibilità. Attualmente l'approvvigionamento idrico è garantito da due capienti cisterne da 1.500 e 700 quintali, ma è già prevista la possibilità di allaccio alla rete dell'acquedotto. Impianto di allarme. Per immobili simili visita il sito myprojectcasa classe energetica: a epi: 175 kwh/m2 anno




Caratteristiche immobile:
Codice inserzione: 1761183080
Rif. Annuncio: 1944
Provincia: Taranto
Comune: Martina Franca
Superficie (Mq) : 250 Mq.
Tipo immobile: Case e ville indipendenti
Stato immobile: ristrutturato
Piano: Ultimo piano
Camere: 2
Arredato:
Bagni: 2

Costi:
Prezzo € 219.000


Efficienza energetica:
Classe energetica: A1
Indice di prestazione energetica (EPgl): 175 kWh/mq annui