home page > Annunci immobiliari in Italia > Sardegna > Nuoro > Siniscola > appartamenti in vendita > Scheda immobile

Appartamento in vendita a Siniscola

COMPILA IL MODULO SOTTOSTANTE PER RICEVERE MAGGIORI INFORMAZIONI







Invia la richiesta ad altre agenzie
Accetto il trattamento dei miei dati



Salva pinto immobiliare

Via cagliari , 96
08029 Siniscola (NU)

07841822948    07841822948    3487912968    Riferimenti: Salva Pinto

Siniscola
Prezzo: € 60.000
G
2
70



Descrizione:
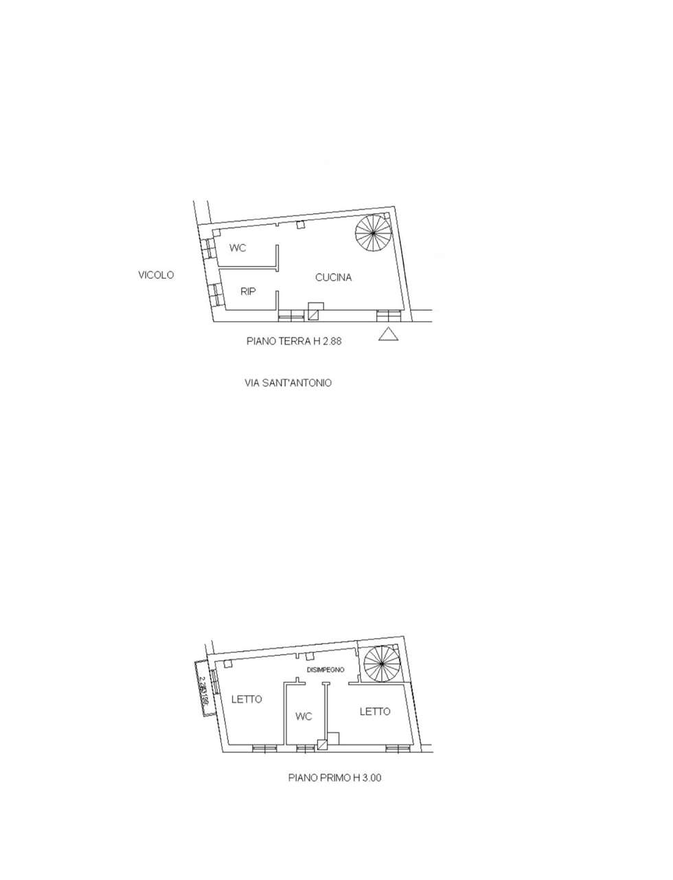
Siniscola a siniscola, in via sant'antonio, proponiamo in vendita un terratetto caposchiera disposto su due livelli, ideale per chi desidera una soluzione indipendente nel centro abitato, da ristrutturare secondo il proprio gusto e le proprie esigenze.al piano terra l'immobile è composto da un soggiorno-pranzo, un cucinotto separato e un bagno di servizio. Una scala a chiocciola interna conduce al piano superiore, dove si sviluppa la zona notte, composta da due camere da letto di cui una con piccolo balcone e un secondo bagno.la casa necessita di interventi di ristrutturazione, ma offre ottime potenzialità per chi desidera creare una dimora personalizzata o un investimento nel cuore del paese.classe energetica: g




Caratteristiche immobile:
Codice inserzione: 1762301502
Rif. Annuncio: Terratetto Sant'Antonio
Provincia: Nuoro
Comune: Siniscola
Superficie (Mq) : 70 Mq.
Tipo immobile: Appartamento
Camere: 2

Costi:
Prezzo € 60.000


Efficienza energetica:
Classe energetica: G