home page > Annunci immobiliari in Italia > Sardegna > Sassari > Stintino > Case e ville indipendenti in vendita > Scheda immobile

Case e ville indipendenti in vendita a Stintino

COMPILA IL MODULO SOTTOSTANTE PER RICEVERE MAGGIORI INFORMAZIONI







Invia la richiesta ad altre agenzie
Accetto il trattamento dei miei dati



Tiziano satta real estate group

Viale umberto i°, 52
07100 Sassari

0799670143    Riferimenti: Tiziano Satta

Stintino
Prezzo: € 120.000
G
3
130



Descrizione:
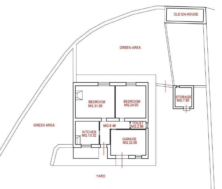
Dimore italiane investimenti immobiliari vendein location di altissimo prestigio a forte vocazione turistica, immersa in uno dei più belli scenari costieri marini apprezzato in tutto il mondo, inserita in contesto unico con macchia mediterranea protetta, a 17 km da stintino, a 1 km in linea d'aria dalla spiaggia di 'rena majore' del mare di fuori e a 750 metri in linea d'aria dalla spiaggia di 'lampianu', casa indipendente della superficie di circa 130 mq, interamente dislocata al piano terra, da ristrutturare e attualmente costituita da 3 camere, bagno, disimpegno e garage, oltre a pollaio e magazzino, il tutto perfettamente autorizzato e regolarmente autorizzato, e viene venduta con 5000 mq di terreno pianeggiante. La casa dispone di acqua indipendente (pozzo trivellato mt.40.00 di profondità, autorizzato dal genio civile) con elettropompa sommersa e impianto autoclave funzionante, allaccio attivo alla rete elettrica e linea telefonica attiva. Possibilita' di realizzazione piscina, pergolati e tettoie, o di modificarne la diposizione interna o, ancora, di suddivisione in 2 unità abitative secondo le ipotesi progettuali indicate in foto. soluzione unica ed introvabile. Ideale per gli amanti della natura e della privacy.classe energetica g invitiamo la gentile clientela, preventivamente alla visita, a contattare l' agenzia dimore italiane investimenti immobiliari, lasciando il vostro recapito (nominativo e numero di telefono). Un nostro operatore vi ricontatterà il prima possibile per la verifica della disponibilità del prodotto e della sua precisa corrispondenza alla descrizione dell'annuncio. La visione degli immobili verrà effettuata previo sottoscrizione del rapporto di visita ed autorizzazione al trattamento dei dati personali. Il presente annuncio non costituisce elemento contrattuale. dimore italiane investimenti immobiliari e' un marchio di proprieta' di tiziano satta real estate group. Tutti i diritti riservati.classe energetica: g




Caratteristiche immobile:
Codice inserzione: 1756768348
Rif. Annuncio: V000753
Provincia: Sassari
Comune: Stintino
Superficie (Mq) : 130 Mq.
Tipo immobile: Case e ville indipendenti
Camere: 3

Costi:
Prezzo € 120.000


Efficienza energetica:
Classe energetica: G