home page > Annunci immobiliari in Italia > Sicilia > Catania > Fiumefreddo di Sicilia > Negozi uffici capannoni in vendita > Scheda immobile

Negozi uffici capannoni in vendita a Fiumefreddo di Sicilia

COMPILA IL MODULO SOTTOSTANTE PER RICEVERE MAGGIORI INFORMAZIONI







Invia la richiesta ad altre agenzie
Accetto il trattamento dei miei dati



Quimmo agency

Via galileo galilei 6
48018 Faenza (RA)

0299944698

Fiumefreddo di Sicilia
Prezzo: € 324.000
2
452



Descrizione:
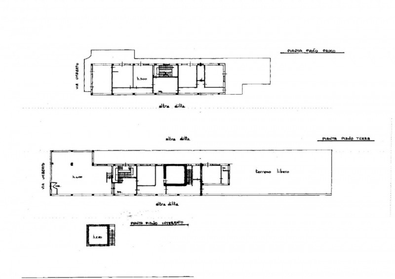
Nel centro della cittadina di fiumefreddo di sicilia (ct), in via umberto i n°20 proponiamo in vendita i locali di un ex istituto bancario ubicati all'interno di un edificio costruito negli anni'70, costituito da tre piani fuori terra ed un piano interrato: il bene è costituito da una zona sportelli di ricezione clienti al piano terra, uffici al primo piano, un terrazzo al secondo piano ed un magazzino nel piano interrato. Il bene presenta un buon livello qualitativo in termini di finiture ed impianti tecnologici. Al piano terra è presente anche un area verdeci troviamo nella zona centrale del comune di fiumefreddo, servita da principali servizi pubblici privati a destinazione residenziale e terziari e dista circa 39 km dalla città di cataniasuperficie commerciale ragguagliata totale: circa 451,93 mq




Caratteristiche immobile:
Codice inserzione: 1757386780
Rif. Annuncio: 2519011
Provincia: Catania
Comune: Fiumefreddo di Sicilia
Superficie (Mq) : 452 Mq.
Tipo immobile: Negozi uffici capannoni
Stato immobile: usato
Bagni: 2

Costi:
Prezzo € 324.000


Efficienza energetica: