home page > Annunci immobiliari in Italia > Sicilia > Catania > Gravina di Catania > Negozi uffici capannoni in vendita > Scheda immobile

Negozi uffici capannoni in vendita a Gravina di Catania

COMPILA IL MODULO SOTTOSTANTE PER RICEVERE MAGGIORI INFORMAZIONI







Invia la richiesta ad altre agenzie
Accetto il trattamento dei miei dati



Fleming real estate s.r.l.

Via francesco saverio nitti 60/62
00118 Roma

06.36303116    Riferimenti: Daniele/Stefano

Gravina di Catania
Prezzo: € 215.000
2
230
Piano terra



Descrizione:
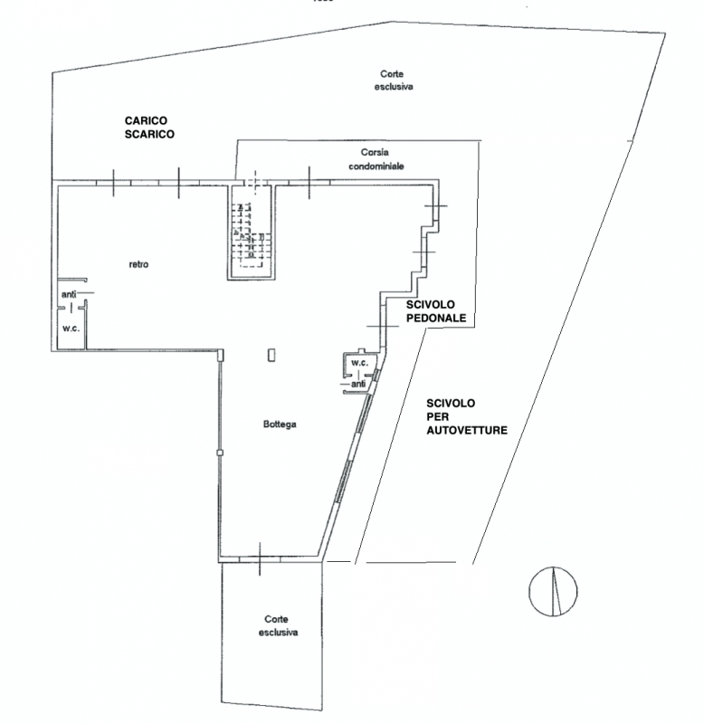
Proponiamo un negozio commerciale c1 in gravina di catania via carubbella di 230 mq circa due vetrine, corte per parcheggio frontale o per ampliamento estivo. l'immobile è adatto a diverse attività vedi ( ristorante bar, pizzeria, pam local, pescheria, concessionario ). Per i più esigenti l'immobile volendo può essere ampliato fino ad arrivare ad un totale di 330mq ( vedi planimetria allegata) con una importante corte frontale dove vi sono 3 vetrine ed una corte sul retro che permette carico e scarico al di fuori del traffico.anche in questo caso è una proposta versatile adatta a varie attività commerciali( vedi pam local, concessionario di auto etc) per il primo immobile di 100 mq circa la richiesta è di 95.000,00 per informazioni e appuntamenti contattare lo per appuntamenti ed informazioni potete rivolgervi all'agenzia immobiliare fleming real estate i nostri uffici si trovano in via f. Saverio nitti roma, e sono aperti il lunedù dalle 9,30 alle 13 e dalle 15.30 alle 19.30 dal giovedù al venerdù dalle 9 alle 13 e dalle 15.30 alle 19.30 - il sabato dalle 9,30 alle 13,00 di fronte alla scuola nitti con due vetrine su strada.importante: per poter dare un migliore servizio gli utenti sono pregati di fissare gli appuntamenti telefonicamente e non via mail grazie.per appuntamenti ed informazioni potete rivolgervi all'agenzia immobiliare fleming real estate I nostri uffici si trovano in via f. Saverio nitti roma, e sono aperti il lunedù dalle 10:00 alle 13 e dalle 15.30 alle 19.30 dal giovedù al venerdù dalle 9:30 alle 13 e dalle 15.30 alle 19.30 - il sabato dalle 10:00 alle 13,00. Le informazioni nella scheda sono a titolo informativo e non rappresentano condizioni contrattuali. Per info: fleming real estate - via f. S. Nitti n tel r.a.




Caratteristiche immobile:
Codice inserzione: 1767759237
Rif. Annuncio: Gravina catania gran
Provincia: Catania
Comune: Gravina di Catania
Superficie (Mq) : 230 Mq.
Tipo immobile: Negozi uffici capannoni
Stato immobile: usato da riattare
Piano: Piano terra
Bagni: 2

Costi:
Prezzo € 215.000


Efficienza energetica: