home page > Annunci immobiliari in Italia > Sicilia > Catania > Mazzarrone > Negozi uffici capannoni in vendita > Scheda immobile

Negozi uffici capannoni in vendita a Mazzarrone

COMPILA IL MODULO SOTTOSTANTE PER RICEVERE MAGGIORI INFORMAZIONI







Invia la richiesta ad altre agenzie
Accetto il trattamento dei miei dati



Quimmo agency

Via galileo galilei 6
48018 Faenza (RA)

0299944698

Mazzarrone
Prezzo: € 109.000
2
177



Descrizione:
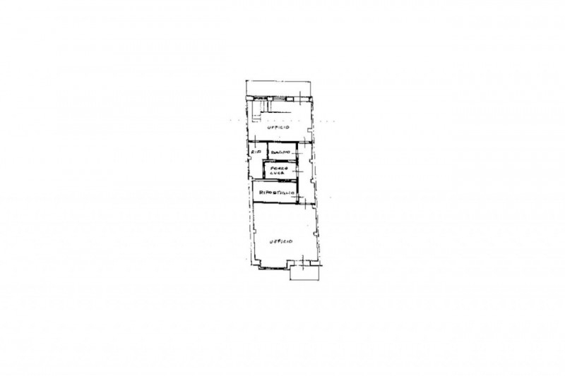
Nel centro della cittadina di mazzarrone (ct), in piazza san giuseppe n°8 proponiamo in vendita un unità immobiliare adibito a filiale bancaria. L'unità immobiliare si compone di un piano terra dotato di un'ampia area di ingresso per ricevimento al pubblico, un ufficio ed un disimpegno. Tramite un vano scala interno è possibile accedere al piano primo dove troviamo un corridoio, due uffici, servizio igienico dotato di antibagno, ripostiglio con annesso locale server e un pozzo luce interno. L'immobile presenta pavimenti in gres e graniglia, è dotato anche di riscaldamento per l'acqua calda sanitaria che avviene tramite uno scaldabagno elettrico ed è presente anche l'impianto per la climatizzazione invernale ed estiva per mezzo di spit indipendenti.il bene dista circa 35 km d ragusa e circa 20 km dai limitrofi centri di vittoria e comiso.superficie commerciale: circa 177, 00 mq




Caratteristiche immobile:
Codice inserzione: 1757386616
Rif. Annuncio: 2519012
Provincia: Catania
Comune: Mazzarrone
Superficie (Mq) : 177 Mq.
Tipo immobile: Negozi uffici capannoni
Stato immobile: usato
Bagni: 2

Costi:
Prezzo € 109.000


Efficienza energetica:
Riscaldamento: autonomo