Descrizione:
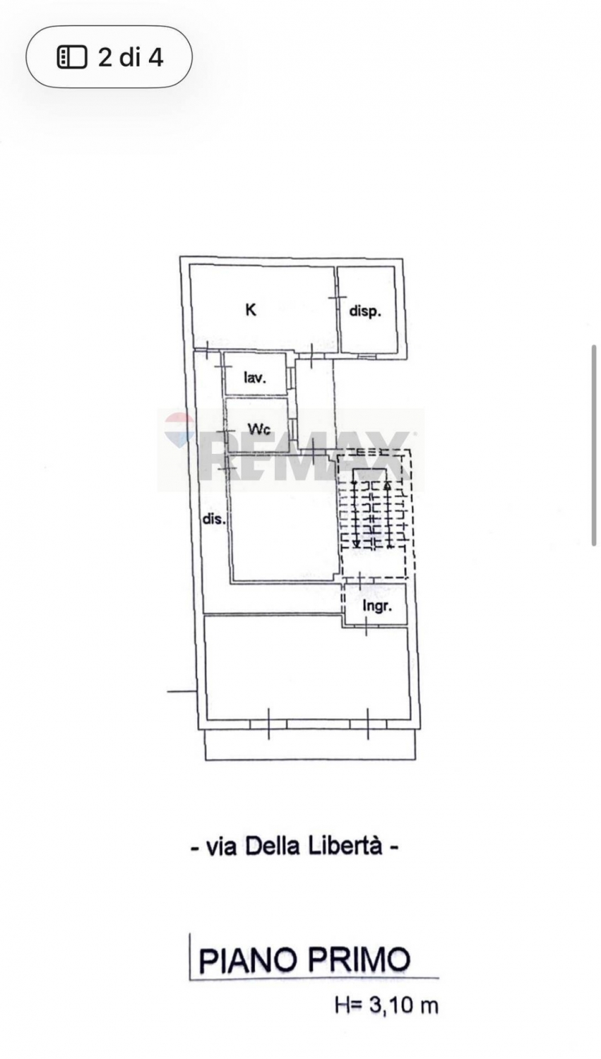
Misterbianco, zona centrale, a pochi passi da piazza mercato, zona servita da attività commerciali, di facile collegamento alle principali arterie provinciali, proponiamo in vendita intero stabile da ristrutturare composto da tre appartamenti situati al piano terra, piano primo, piano secondo, più terrazza con locale tecnico al terzo piano.la palazzina è composta da un appartamento al piano terra di 70 mq c.ca, con piccolo cortile di pertinenza, due appartamenti al piano primo e al piano secondo rispettivamente di 95 mq circa ognuno e di un locale tecnico di 30 mq al piano terzo oltre ad un terrazzo di 50 mq. Gli appartamenti hanno esposizione su via principale, sono catastalmente separati e questo rende la struttura un ottimo investimento ai fini di riqualificazione e rivendita di tre appartamenti separatamente o per famiglie dello stesso nucleo familiare che desiderano abitare nello stesso contesto condominiale, ideale pure per chi volesse fare un investimento per mettere a reddito gli immobili vista la posizione strategica della struttura. Necessita di una ristrutturazione completa sia interna che esterna.