Descrizione:
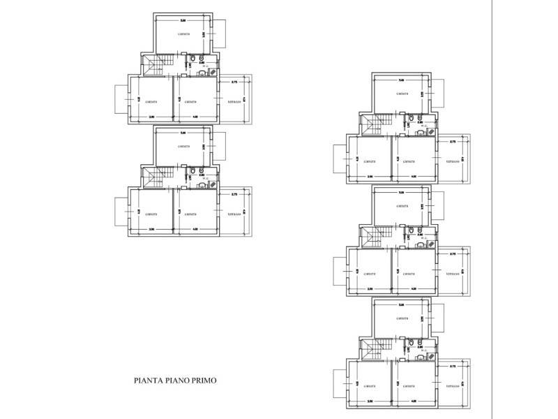
**villette in vendita con vista panoramica su palermo**piano maglio-zona residenziale - vivere in classe a - ville in corso di costruzionescopri queste splendide villette in una zona residenziale tranquilla, attualmente in costruzione e pronte per accoglierti a partire da marzo 2026. Con una superficie commerciale di varie quadrature da 170 m a 200 m, queste ville offrono ampi spazi interni ed esterni, perfetti per vivere in comfort e serenità. Gli interni sono progettati con rifiniture di pregio e una vasta scelta di materiali di capitolato, garantendo un'elevata personalizzazione.la composizione degli spazi à studiata per soddisfare ogni esigenza: al piano terra, un wcd, un luminoso salone doppio e una cucina abitabile si affacciano su un giardino privato con cancello carrabile automatizzato, mentre il primo piano ospita tre spaziose camere da letto e un bagno. Il secondo piano, con un locale tecnico mansardato, offre ulteriori possibilità di utilizzo.queste ville sono dotate di tecniche edilizie moderne che assicurano un elevato comfort abitativo e un significativo risparmio energetico. Gli infissi a taglio termico e l'isolamento in gasbeton garantiscono un'ottima efficienza energetica e acustica. Non perdere l'opportunità di vivere in un ambiente esclusivo, circondato da giardini di varie dimensioni e con una vista mozzafiato su palermo. Prezzo a partire da euro 320.000, 00. Contattaci per maggiori informazioni!