home page > Annunci immobiliari in Italia > Sicilia > Palermo > Carini > Case e ville indipendenti in vendita > Scheda immobile

Case e ville indipendenti in vendita a Carini

COMPILA IL MODULO SOTTOSTANTE PER RICEVERE MAGGIORI INFORMAZIONI







Invia la richiesta ad altre agenzie
Accetto il trattamento dei miei dati



Immobili all'asta

Viale sabotino 4
20121 Milano

0280888267    Riferimenti: Ivano De Natale

Carini
Prezzo: € 120.000
F
4
1
163
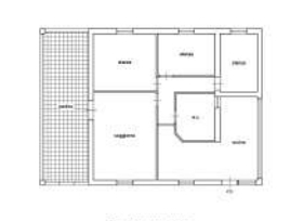
Piano terra



Descrizione:
Villa all'asta in via f. Magellano, carini (pa)si propone il diritto di piena proprietà su immobile ad uso residenziale sito in via ferdinando magellano, 39, nel comune di carini (pa).nello specifico si tratta di una villa, composta da:piano terra: cucina, ingresso, corridoio di disimpegno, 4 stanze, soggiorno, servizio igienico.accessori- terrazzo- portico- giardino.l'unità abitativa risulta avere una superficie di circa 163mq.dati catastalil'unità immobiliare risulta identificata al catasto fabbricati come segue:foglio 8, particella 403, categoria a/7, classe 7, consistenza vani 6, rendita catastale € 464,81. chi siamoimmobiliallasta.it aiuta le persone a comprare casa all'asta e migliorare la qualità della loro vita senza correre rischi, grazie ad una piattaforma specializzata in aste immobiliari sviluppata intorno alle vere esigenze di chi cerca casa all'asta e ad un team di 30 professionisti esperti dedicato, che ti guida passo passo in un acquisto sicuro e certificato da una tripla garanzia sull'immobile e sul servizio. a differenza delle agenzie troverai: + varietà: gestiamo migliaia di immobili ogni mese+ tranquillità: tripla garanzia che ti tutela da ogni rischio sull'acquistoalcuni risultati oggettivi nell'ultimo anno e mezzo:- 8.600 immobili gestiti- +500 clienti portati all'asta - +200 case aggiudicate, per un valore totale di 15 milionicontattaci subito per parlare con uno dei nostri consulenti che ti aiuterà a trovare la tua casa all'asta senza correre rischi.




Caratteristiche immobile:
Codice inserzione: 1763697479
Rif. Annuncio: ST12264
Provincia: Palermo
Comune: Carini
Superficie (Mq) : 163 Mq.
Tipo immobile: Case e ville indipendenti
Stato immobile: usato
Anno costruzione/ristrutturazione: 1960
Piano: Piano terra
Camere: 4
Bagni: 1
Terrazze: 1

Costi:
Prezzo € 120.000


Efficienza energetica:
Classe energetica: F
Indice di prestazione energetica (EPgl): 175 kWh/mq annui