home page > Annunci immobiliari in Italia > Sicilia > Palermo > Isola delle Femmine > Negozi uffici capannoni in vendita > Scheda immobile

Negozi uffici capannoni in vendita a Isola delle Femmine

COMPILA IL MODULO SOTTOSTANTE PER RICEVERE MAGGIORI INFORMAZIONI







Invia la richiesta ad altre agenzie
Accetto il trattamento dei miei dati



Quimmo agency

Via galileo galilei 6
48018 Faenza (RA)

0299944698

Isola delle Femmine
Prezzo: € 2.800.000
G
3
4750



Descrizione:
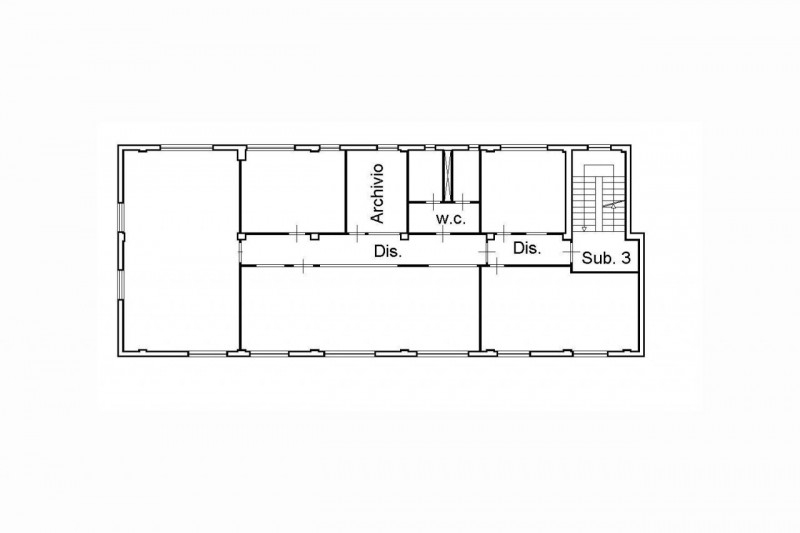
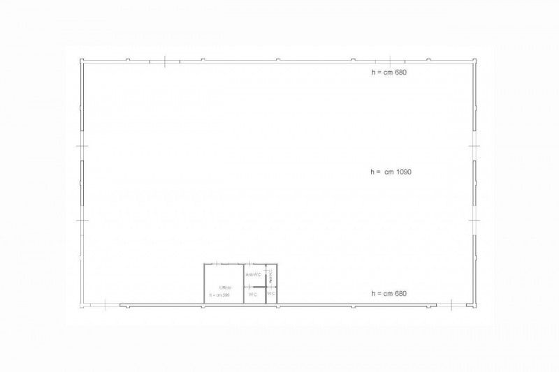
Complesso industriale sito nel comune di isola delle femmine, via delle industrie, su lotti di terreno che comprendono una porzione di montagna estesi complessivamente circa 13.000 metri quadri sui quali insistono due capannoni con una superficie complessiva di 4.000 mq (1 capannone di 2.000+1.000 di soppalco raggiungibile e percorribile con muletto + 1 capannone di 1.000 mq.)palazzina uffici mq. Complessivi 750, che si sviluppa su piano terra, piano primo e secondo.il capannone di mq. 1.000, la metà del capannone di 2.000 mq ed il primo piano della palazzina uffici sono locati, la cui prossima scadenza è prevista contrattualmente per il 31 dic 2026, tutte le rimanenti porzioni sono attualmente utilizzate dalla proprietà e saranno libere al rogito.il complesso è facilmente raggiungibile, grazie anche alla facilità di manovra nelle aree di pertinenza che consentono carico e scarico delle merci.




Caratteristiche immobile:
Codice inserzione: 1757386495
Rif. Annuncio: 25143
Provincia: Palermo
Comune: Isola delle Femmine
Superficie (Mq) : 4750 Mq.
Tipo immobile: Negozi uffici capannoni
Stato immobile: usato
Bagni: 3

Costi:
Prezzo € 2.800.000


Efficienza energetica:
Classe energetica: G