Descrizione:
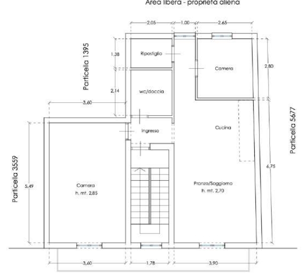
Appartamento all'asta in via g. Di gregorio, villabate (pa)si propone il diritto di piena proprietà su immobile ad uso residenziale sito in via generale di gregorio, 10, nel comune di villabate (pa).nello specifico si tratta di un appartamento al piano terzo, composto da:- ingresso- soggiorno/cucina- 2 camere da letto- wc doccia- ripostiglio- balcone.l'unità risulta avere una superficie di circa 66mq.dati catastalil'unità immobiliare risulta identificata al catasto fabbricati come segue:foglio 3, particella 1430, subalterno 5, categoria a/4, classe 6,vani 3,5, rendita catastale euro 180,76.chi siamoimmobiliallasta.it aiuta le persone a comprare casa all'asta e migliorare la qualità della loro vita senza correre rischi, grazie ad una piattaforma specializzata in aste immobiliari sviluppata intorno alle vere esigenze di chi cerca casa all'asta e ad un team di 30 professionisti esperti dedicato, che ti guida passo passo in un acquisto sicuro e certificato da una tripla garanzia sull'immobile e sul servizio.a differenza delle agenzie troverai:+ varietà: gestiamo migliaia di immobili ogni mese+ tranquillità: tripla garanzia che ti tutela da ogni rischio sull'acquistoalcuni risultati oggettivi nell'ultimo anno e mezzo:- 8.600 immobili gestiti- +500 clienti portati all'asta- +200 case aggiudicate, per un valore totale di 15 milionicontattaci subito per parlare con uno dei nostri consulenti che ti aiuterà a trovare la tua casa all'asta senza correre rischi.