home page > Annunci immobiliari in Italia > Sicilia > Trapani > Marsala > Case e ville indipendenti in vendita > Scheda immobile

Case e ville indipendenti in vendita a Marsala

COMPILA IL MODULO SOTTOSTANTE PER RICEVERE MAGGIORI INFORMAZIONI







Invia la richiesta ad altre agenzie
Accetto il trattamento dei miei dati



Dieffecasa

Piazza giacomo matteotti, 15
91025 Marsala (TP)

0923362297    1782726092    3477196079    Riferimenti: DIEFFECASA

Marsala
Prezzo: € 160.000
G
10
360



Descrizione:
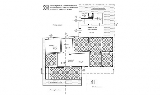
Rif. V1801 - in vendita a marsala, in pieno centro storico. Intero stabile, interamente da ristrutturare, di complessivi 360 mq diviso in 120 mq al piano terra con (possibile acquisto frazionato di due appartamenti di 50 mq e 75 mq); 240 mq al primo piano (con possibile acquisto frazionato di tre appartamenti, di cui due da 70 mq e l'altro di 100 mq con veranda di 40 mq). Richiesta € 160.000,00 trattabili.classe energetica: g




Caratteristiche immobile:
Codice inserzione: 1714349790
Rif. Annuncio: V1801
Provincia: Trapani
Comune: Marsala
Superficie (Mq) : 360 Mq.
Tipo immobile: Case e ville indipendenti
Camere: 10

Costi:
Prezzo € 160.000


Efficienza energetica:
Classe energetica: G