home page > Annunci immobiliari in Italia > Toscana > Arezzo > Civitella in Val di Chiana > Case e ville indipendenti in vendita > Scheda immobile

Case e ville indipendenti in vendita a Civitella in Val di Chiana

COMPILA IL MODULO SOTTOSTANTE PER RICEVERE MAGGIORI INFORMAZIONI







Invia la richiesta ad altre agenzie
Accetto il trattamento dei miei dati



Tuscany house

Via guido monaco 41/b arezzo
52100 Arezzo

057522975    Riferimenti: ANDREA CASI

Civitella in Val di Chiana
Prezzo: € 450.000
3
1
150
Su più livelli
8000 Mq



Descrizione:
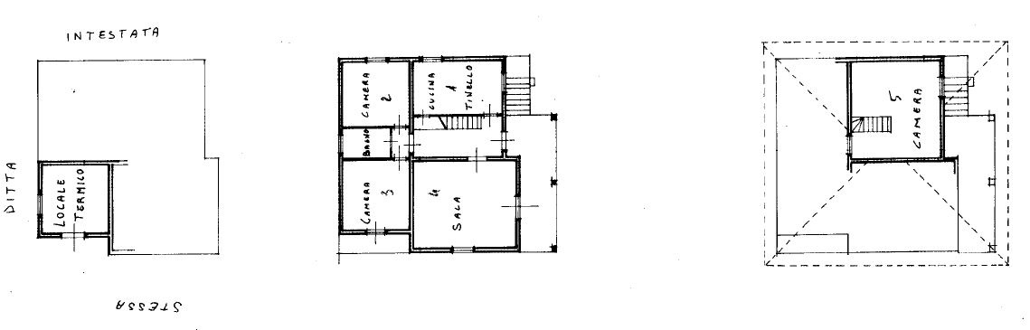
Zona oliveta , vendesi casa singola degli anni '70 con piccola azienda agricola.la casa di 150 mq si sviluppa su due livelli .piano primo , ingresso , salone , cucina abitabile con camino , due camere matrimoniali, bagno , al piano superiore grande mansarda attualmente usata come terza camera.al piano terra si trovano le grandi cantine e il locale tecnico e autorimessa.8000 mq di terreno con vigna e olivi . Pozzo.rif. H120 €450.000 classe energetica: non dichiarata




Caratteristiche immobile:
Codice inserzione: 1645071444
Rif. Annuncio: H120
Provincia: Arezzo
Comune: Civitella in Val di Chiana
Superficie (Mq) : 150 Mq.
Tipo immobile: Case e ville indipendenti
Piano: Su più livelli
Camere: 3
Stato al rogito: Libero
Giardino : 8000 Mq.
Tipologia giardino : Privato
Bagni: 1
Terrazze: 1

Costi:
Prezzo € 450.000


Efficienza energetica:
Riscaldamento: autonomo