home page > Annunci immobiliari in Italia > Toscana > Firenze > Borgo San Lorenzo > Case e ville indipendenti in vendita > Scheda immobile

Case e ville indipendenti in vendita a Borgo San Lorenzo

COMPILA IL MODULO SOTTOSTANTE PER RICEVERE MAGGIORI INFORMAZIONI







Invia la richiesta ad altre agenzie
Accetto il trattamento dei miei dati



Pianeta casa sas di nazzi gabriele

Via e. Fermi 9
50032 Borgo San Lorenzo (FI)

055.8402722

Borgo San Lorenzo
Prezzo: € 450.000
G
4
2
110
Piano terra



Descrizione:
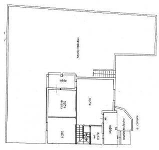
Borgo san lorenzo, proponiamo in vendita villetta bifamiliare, vani 6 oltre doppi servizi, ampio garage, due cantine,taverna con canimo, loggia e terrazzo. Giardino privato mq 250. Buono stato.piano terra salotto, cucina con accesso al giardino, camera matrimoniale e bagno finestrato, al piano primo tre camere matrimonili e bagno, al piano seminterrato ampio garage, taverna con camino e due cantine. Completa la prorietà loggiato e giardino. A solo 1,5 km dal paese.non perdere l'occasione di vitare questa proprietà fissa un appuntamento in agenzia chiama il numero oppure visita il sito classe energetica: g




Caratteristiche immobile:
Codice inserzione: 1770694509
Rif. Annuncio: ANE012
Provincia: Firenze
Comune: Borgo San Lorenzo
Superficie (Mq) : 110 Mq.
Tipo immobile: Case e ville indipendenti
Piano: Piano terra
Camere: 4
Garage: Singolo
Bagni: 2

Costi:
Prezzo € 450.000


Efficienza energetica:
Classe energetica: G
Riscaldamento: autonomo