home page > Annunci immobiliari in Italia > Toscana > Firenze > Calenzano > appartamenti in vendita > Scheda immobile

Appartamento in vendita a Calenzano

COMPILA IL MODULO SOTTOSTANTE PER RICEVERE MAGGIORI INFORMAZIONI







Invia la richiesta ad altre agenzie
Accetto il trattamento dei miei dati



Immobiliare zoppi

Via di prato 39/a
50041 Calenzano (FI)

0558879255    Riferimenti: ZOPPI/ANDREA

Calenzano
Prezzo: € 410.000
A2
1
2
86
2



Descrizione:
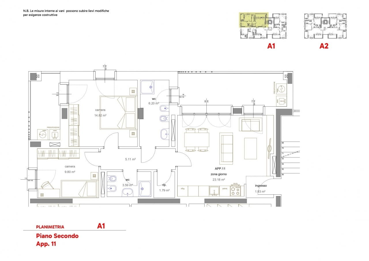
Rif.592zcalenzano, in zona centrale prossima ai principali servizi, proponiamo in vendita 3 vani di nuova costruzione. l'immobile posto al piano secondo sviluppa una superficie di circa mq 86,00 ed à composto da luminoso soggiorno con angolo cottura da cui si accede allo spazioso terrazzo, camera matrimoniale con accesso al secondo terrazzo,camera singola oltre due servizi di cui uno finestrato e ripostiglio. completa la proprietà- cantina di circa mq 12,00 e posto auto coperto. ottimo capitolato con riscaldamento a pavimento, climatizzazione di serie, cappotto termico einfissi in legno con vetrocamera a taglio termico e acustico. la consegna à prevista entro fine 2026. classe energetica a2. sconto sisma bonus: euro 34.560,00 detraibili in 10 anni su irpef. richiesta euro 410.000,00.maggiori informazioni, piantine, progetto e rendering in agenzia.rif.592z per qualsiasi informazione contattare agenzia immobiliare zoppi sas classe energetica: a2 - ipe: 0.00kwh/mq anno




Caratteristiche immobile:
Codice inserzione: 1776137771
Rif. Annuncio: 592Z
Provincia: Firenze
Comune: Calenzano
Superficie (Mq) : 86 Mq.
Tipo immobile: Appartamento
Stato immobile: nuovo
Piano: 2
Camere: 1
Stato al rogito: Libero
Bagni: 2
Terrazze: 1

Costi:
Prezzo € 410.000


Efficienza energetica:
Classe energetica: A2
Riscaldamento: autonomo