home page > Annunci immobiliari in Italia > Toscana > Firenze > Campi Bisenzio > appartamenti in vendita > Scheda immobile

Appartamento in vendita a Campi Bisenzio

COMPILA IL MODULO SOTTOSTANTE PER RICEVERE MAGGIORI INFORMAZIONI







Invia la richiesta ad altre agenzie
Accetto il trattamento dei miei dati



Fra-mo immobiliare

Via pistoiese, 135
50058 Signa (FI)

0558961241    3355968699    Riferimenti: GUARNIERI/VIVIANA

Campi Bisenzio
Prezzo: € 650.000
G
4
2
480
Piano terra
2000 Mq



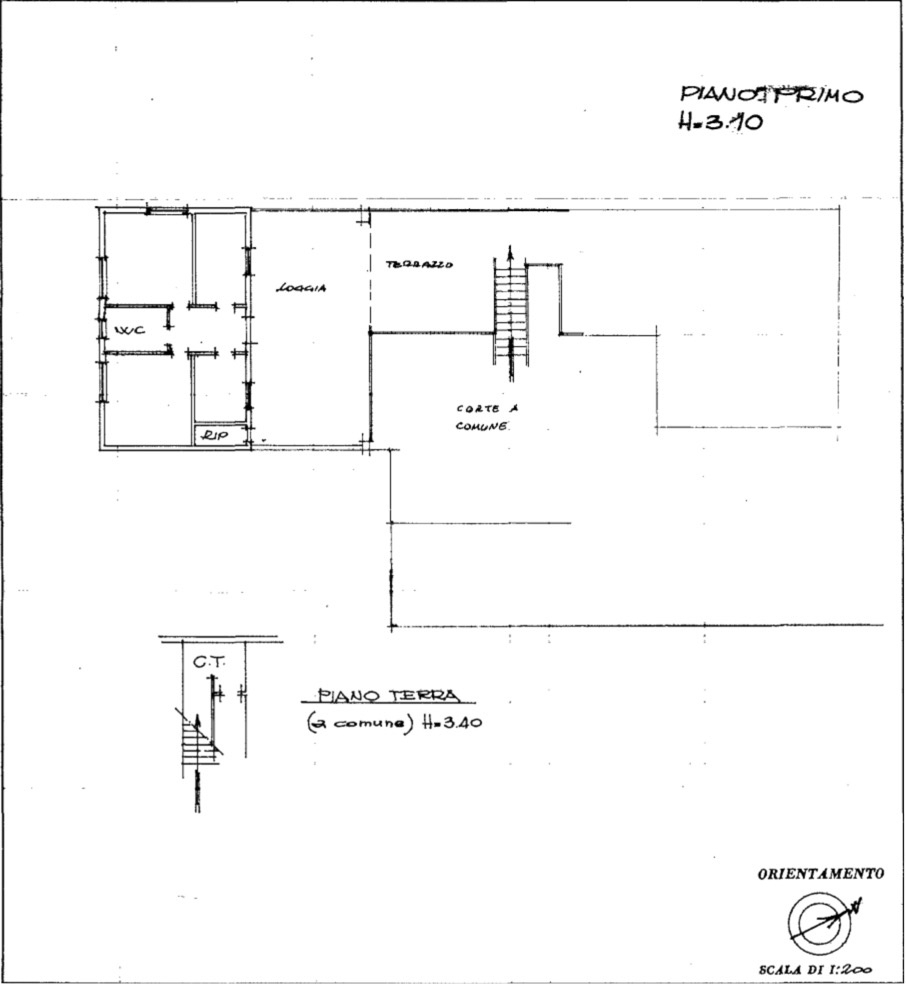
Descrizione:
Campi bisenzio, san martino: ampia proprietà€ di 480 mq. Formata da 2 grandi appartamenti, terrazze, loggia, magazzini, corte con accesso carrabile e 2000 mq di terreno.situato nel centro della zona residenziale di san martino, in posizione strategica vicina a tutti i principali servizi, proponiamo in vendita un complesso immobiliare di grande potenziale. La proprietà- à composta:al piano primo, da 2 ampi appartamenti indipendenti (da ristrutturare), caratterizzati da grandi spazi e ottima esposizione, di 4 vani, con bagno finestrato, 1 terrazzo di 60 mq e 1 loggia di 120 mq, al piano terra da due fondi attualmente ad uso magazzino. Completa la proprietà- un ampia corte con accesso carrabile e un terreno di 2000 mq. Soluzione ideale per nuclei familiari numerosi che desiderano vivere vicini mantenendo l'indipendenza.possibilità- di realizzare anche due terratetti indipendenti.prezzo richiesto € 650.000.contattaci per maggiori informazioni e per prenotare una visita. Classe energetica: g - ipe: 0.00kwh/mq anno




Caratteristiche immobile:
Codice inserzione: 1776136603
Rif. Annuncio: L1339
Provincia: Firenze
Comune: Campi Bisenzio
Superficie (Mq) : 480 Mq.
Tipo immobile: Appartamento
Stato immobile: usato da riattare
Piano: Piano terra
Camere: 4
Stato al rogito: Libero
Giardino : 2000 Mq.
Tipologia giardino : Privato
Bagni: 2
Terrazze: 1

Costi:
Prezzo € 650.000


Efficienza energetica:
Classe energetica: G
Riscaldamento: autonomo