home page > Annunci immobiliari in Italia > Toscana > Firenze > Campi Bisenzio > Case e ville a schiera in vendita > Scheda immobile

Case e ville a schiera in vendita a Campi Bisenzio

COMPILA IL MODULO SOTTOSTANTE PER RICEVERE MAGGIORI INFORMAZIONI







Invia la richiesta ad altre agenzie
Accetto il trattamento dei miei dati



Il faro immobiliare

Via rucellai, 20
50013 Campi Bisenzio (FI)

055890628    Riferimenti: Jacopo Vigiani

Campi Bisenzio
Prezzo: € 360.000
A4
2
2
120



Descrizione:
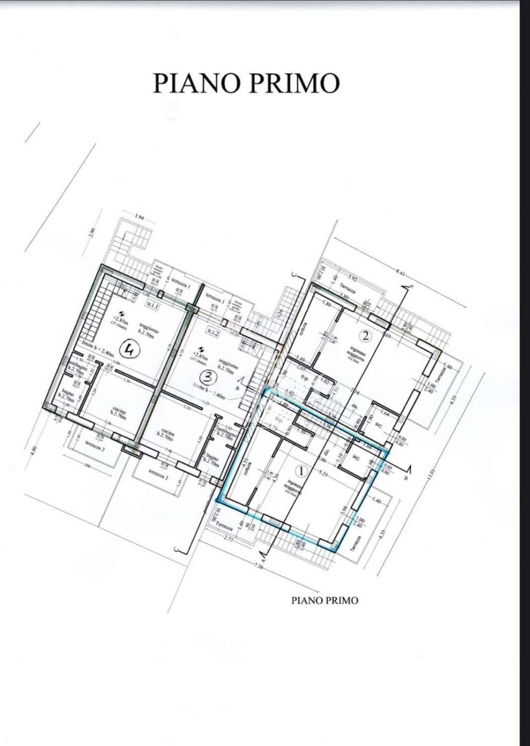
Rif: t793 - rif. T793campi bisenzio fraz. Sant'angelo a lecore pressi indicatore, proponiamo quattro splendide villette di nuova costruzione in classe a angolari con affacci nel verde.le abitazioni in totale quattro ( due più grandi e due più piccole ) sono composte al piano terreno da garage e/o garage doppio e giardini privati carrabili fino a 160 mq. sono disponibili soluzioni 4 vani (su due livelli) e 5 vani (su tre livelli), entrambe con doppi servizi finestrati, terrazzi e vani accessori. al piano primo troviamo ampie zone giorno; al piano secondo e/o terzo 2/3 camere da letto. ottimo capitolato a scelta acquirente. Impianti di riscaldamento a pompa di calore elettrico con pannelli radianti, infissi in pvc, tapparelle elettriche, pannelli fotovoltaici, predisposizione aria condizionata. Consegna a un anno dal preliminare. Richiesta € 360.000 per le unità più piccole ed € 410000 per quelle più grandi.rif. T793




Caratteristiche immobile:
Codice inserzione: 1760662546
Rif. Annuncio: 1336373/2112/T793
Provincia: Firenze
Comune: Campi Bisenzio
Zona: Sant'Angelo a Lecore  
Superficie (Mq) : 120 Mq.
Tipo immobile: Case e ville a schiera
Stato immobile: nuovo
Camere: 2
Garage: Doppio
Tipologia giardino : Privato
Bagni: 2

Costi:
Prezzo € 360.000


Efficienza energetica:
Classe energetica: A4
Indice di prestazione energetica (EPgl): 0.4 kWh/mq annui