Descrizione:
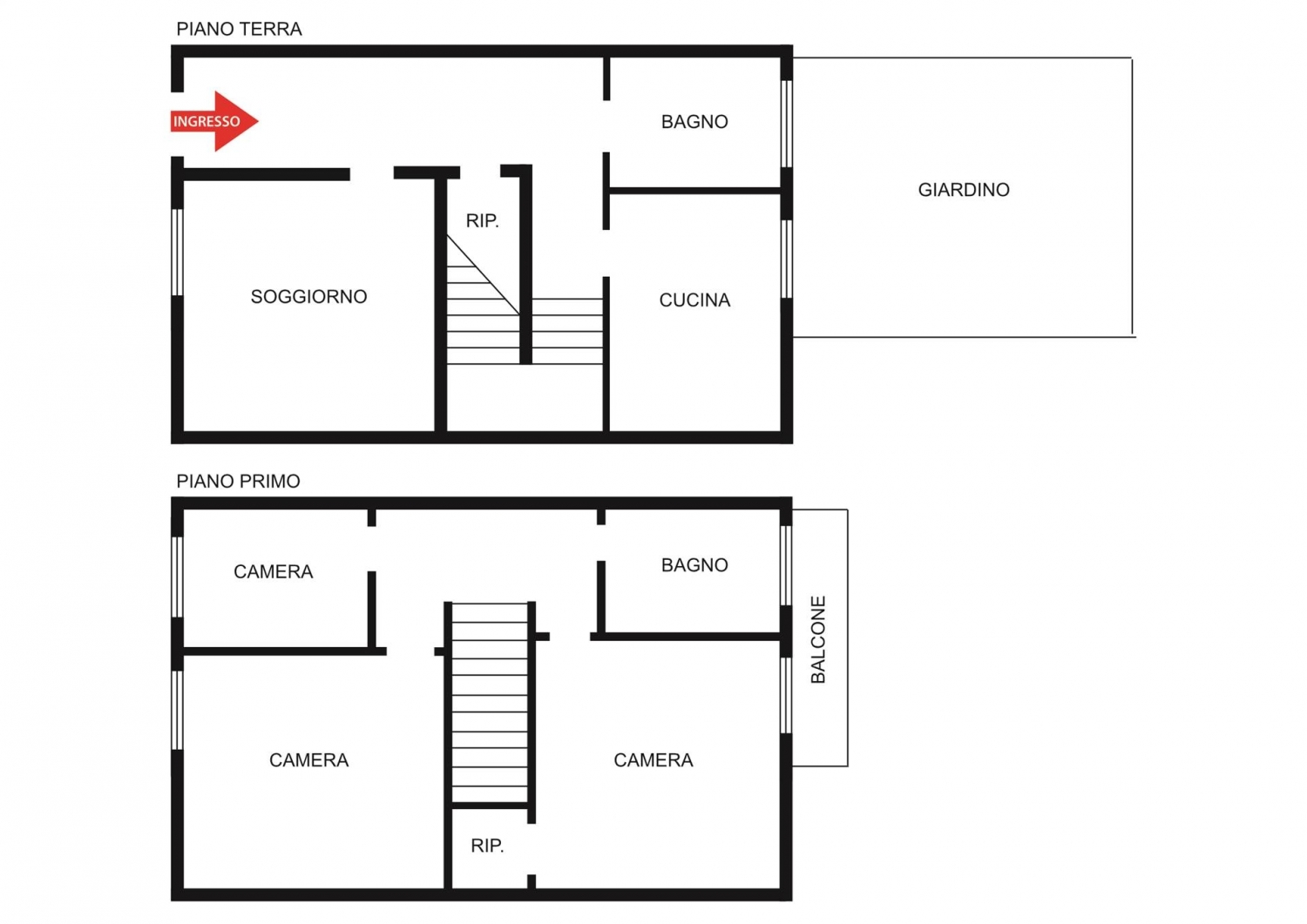
Campi bisenzio, in posizione centrale (sebbene al di fuori della ztl), dunque in prossimità di tutti i principali servizi, si propone in vendita ampio terratetto d'epoca di 128 mq catastali, oltre resede tergale e balcone. L'immobile, disposto su due livelli oltre sottotetto e libero su due lati, è composto, al pian terreno, da accogliente ingresso/disimpegno, ampio soggiorno, un primo servizio finestrato con doccia e antibagno, pratico ripostiglio e cucina abitabile collegata al grazioso resede tergale piastrellato. Salendo le scale si raggiunge il piano primo, dove si sviluppa la zona notte, costituita da due ampie camere da letto matrimoniali, camerina/studio e un ulteriore servizio finestrato con vasca. La camera da letto matrimoniale posta sul lato tergale dell'immobile è collegata ad un pratico balcone e, tramite piccolo vano ripostiglio, ad uno spazioso sottotetto. L'immobile, sebbene datato e da rimodernare, si presenta in buono stato di conservazione e si presta idealmente per famiglie numerose, amanti dell'indipendenza e del taglio classico dell'epoca. Richiesti euro 299.000, libero subito, vendesi. Classe energetica: g