home page > Annunci immobiliari in Italia > Toscana > Firenze > Fucecchio > Negozi uffici capannoni in affitto > Scheda immobile

Negozi uffici capannoni in affitto a Fucecchio

COMPILA IL MODULO SOTTOSTANTE PER RICEVERE MAGGIORI INFORMAZIONI







Invia la richiesta ad altre agenzie
Accetto il trattamento dei miei dati



Immobiliare bruni

Viale antonio gramsci 24
50054 Fucecchio (FI)

0571.22268    057122268

Fucecchio
Prezzo: € 2.500
G
3
550
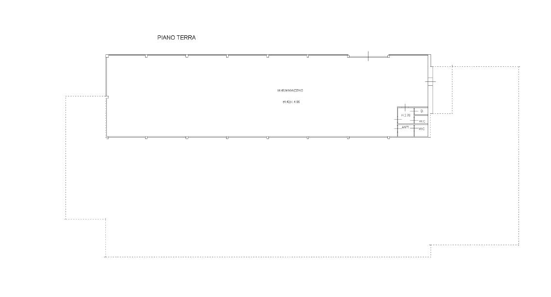
Piano terra



Descrizione:
Fucecchio - ponte a cappiano - viale cristoforo colombo,198 - prezzo eu.2500+iva - edoardo in affitto a fucecchio, nella strategica zona di ponte a cappiano, proponiamo un capannone artigianale di mq. 400 circa situato al primo terra con altezza di 5 metri.il capannone in questione è un d/8, cioè fabbricato adibito ad uso artigianale.la struttura, con classe energetica g, epi 512,27, è composta da un ampio vano, due spogliatoi e tre bagni.le condizioni del capannone sono buone, rendendolo immediatamente disponibile per diverse attività. al primo piano troviamo poi un ampio appartamento di circa mq.150 accessibile da ampia scala e composto da: ingresso, cucinotto, sala da pranzo con accesso al terrazzo, soggiorno, tre camere matrimoniali, ripostiglio e bagno.all'esterno della struttura, tutto completamente recintato e accessibile tramite cancello automatico, piazzale con spazio di manovra di mq. 800 circa.il riscaldamento è autonomo. Inoltre, l'ingresso indipendente offre la massima privacy e autonomia. La posizione strategica del capannone, unita alle sue caratteristiche, lo rende ideale per aziende che cercano uno spazio versatile e ben collegato.non perdere l'opportunità di visitare questo immobile; contattaci per maggiori informazioni e per organizzare un sopralluogo. classe energetica: g epi: 512,27 kwh/m3 anno




Caratteristiche immobile:
Codice inserzione: 1774239050
Rif. Annuncio: FA218
Provincia: Firenze
Comune: Fucecchio
Zona: Ponte a Cappiano  
Superficie (Mq) : 550 Mq.
Tipo immobile: Negozi uffici capannoni
Piano: Piano terra
Bagni: 3

Costi:
Prezzo € 2.500


Efficienza energetica:
Classe energetica: G
Indice di prestazione energetica (EPgl): 512.27 kWh/mc annui
Riscaldamento: autonomo