home page > Annunci immobiliari in Italia > Toscana > Firenze > Gambassi Terme > Case e ville indipendenti in vendita > Scheda immobile

Case e ville indipendenti in vendita a Gambassi Terme

COMPILA IL MODULO SOTTOSTANTE PER RICEVERE MAGGIORI INFORMAZIONI







Invia la richiesta ad altre agenzie
Accetto il trattamento dei miei dati



Agenzia immobiliare il borgo

Via vittorio veneto 54
50050 Gambassi Terme (FI)

0571638239    360783019    Riferimenti: GIANNINI/ALESSANDRA

Gambassi Terme
Prezzo: € 145.000
1
70
Piano terra



Descrizione:
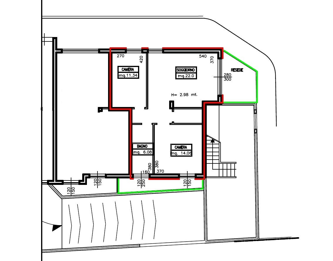
Appartamento 3 vani nuova realizzazione, ubicato al piano terra con ingresso indipendente. L'abitazione è cosù composta: accesso dal resede privato, soggiorno-cucina, disimpegno, 2 camere di cui una con balcone, bagno con finestra, ripostiglio. Utenze indipendenti, impianto termoidraulico a metano, senza spese di condominio. E' possibile realizzare una suddivisione degli ambienti diversa rispetto all'attuale disposizione di progetto e si possono effettuare finiture interne personalizzate. Ubicato in ottima zona residenziale tranquilla e panoramica, a pochi passi dal centro del paese. - sc9457379




Caratteristiche immobile:
Codice inserzione: 1757899407
Rif. Annuncio: G 35
Provincia: Firenze
Comune: Gambassi Terme
Superficie (Mq) : 70 Mq.
Tipo immobile: Case e ville indipendenti
Piano: Piano terra
Bagni: 1

Costi:
Prezzo € 145.000


Efficienza energetica:
Riscaldamento: autonomo