home page > Annunci immobiliari in Italia > Toscana > Firenze > Lastra a Signa > Negozi uffici capannoni in affitto > Scheda immobile

Negozi uffici capannoni in affitto a Lastra a Signa

COMPILA IL MODULO SOTTOSTANTE PER RICEVERE MAGGIORI INFORMAZIONI







Invia la richiesta ad altre agenzie
Accetto il trattamento dei miei dati



Capital immobiliare firenze srl

Via di novoli 73c
50121 Firenze

0557097710    Riferimenti: Stefano Contessa

Lastra a Signa
Prezzo: € 3.100
G
2
3
320
Piano terra



Descrizione:
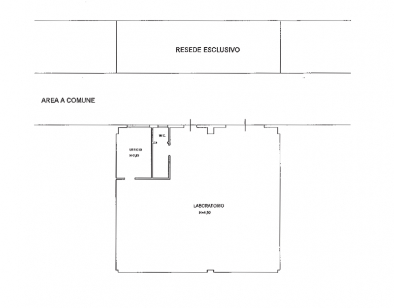
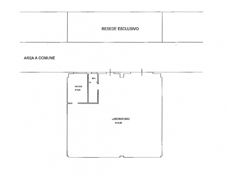
Lastra a signa in zona produttiva, pressi svincolo fipili, disponiamo di due locali artigianali uniti, per un totale di circa 320 mq, composto da due grandi ambienti oltre doppi servizi e ufficio. L'immobile viene consegnato in perfette condizioni manutentive, impianto di riscaldamento autonomo e spazio antistante per carico/scarico.




Caratteristiche immobile:
Codice inserzione: 1764042625
Rif. Annuncio: C10A-073
Provincia: Firenze
Comune: Lastra a Signa
Superficie (Mq) : 320 Mq.
Tipo immobile: Negozi uffici capannoni
Stato immobile: usato
Anno costruzione/ristrutturazione: 1900
Piano: Piano terra
Camere: 2
Tipologia giardino : Condominiale
Bagni: 3

Costi:
Prezzo € 3.100


Efficienza energetica:
Classe energetica: G
Indice di prestazione energetica (EPgl): 175 kWh/mc annui
Riscaldamento: autonomo