home page > Annunci immobiliari in Italia > Toscana > Firenze > Montelupo Fiorentino > Rustici in vendita > Scheda immobile

Rustici in vendita a Montelupo Fiorentino

COMPILA IL MODULO SOTTOSTANTE PER RICEVERE MAGGIORI INFORMAZIONI







Invia la richiesta ad altre agenzie
Accetto il trattamento dei miei dati



Immobiliare chiantigiana

Via chiantigiana 141 - ginestra
50055 Lastra a Signa (FI)

0558713895.3288937436

Montelupo Fiorentino
Prezzo: € 430.000
A4
3
135



Descrizione:
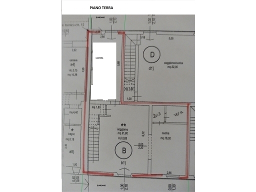
In contesto molto tranquillo e verde di campagna, in prossimita' delle principali vie di comunicazione e del centro abitato. Colonica indipendente in corso di costruzione, divisa in sei unita' immobiliari ognuna con ingresso indipendente ed ampi spazi esterni. L'immobile verra' finito e rifinito con rifiniture tipiche toscane, cotto, travi, parquet. E comunque personalizzabili. Classe energetica a4 con riscaldamento a pompa di calore a pavimento e predisposizione fotovoltaico. Consegna prevista per maggio 2026. Vendita da societa'. Descrizione unita' 'b': terratetto centrale disposto su due livelli per circa 135 mq. Oltre giardino carrabile frontale e teregale per 450 mq, e due posti auto. Composta: al piano terra da soggiorno doppio, disimpegno, cucina sala, bagno, ripostiglio, lavanderia, al piano primo zona notte tre camere con predisposizione per fare un sopplaco per ogni camera oltre bagno finestrato. - classe energetica in elaborazione (agg )




Caratteristiche immobile:
Codice inserzione: 1763356422
Rif. Annuncio: 3/0197
Provincia: Firenze
Comune: Montelupo Fiorentino
Superficie (Mq) : 135 Mq.
Tipo immobile: Rustici
Camere: 3

Costi:
Prezzo € 430.000


Efficienza energetica:
Classe energetica: A4