home page > Annunci immobiliari in Italia > Toscana > Firenze > Pontassieve > appartamenti in vendita > Scheda immobile

Appartamento in vendita a Pontassieve

COMPILA IL MODULO SOTTOSTANTE PER RICEVERE MAGGIORI INFORMAZIONI







Invia la richiesta ad altre agenzie
Accetto il trattamento dei miei dati



Area immobiliare

Via garibaldi 32
50065 Pontassieve (FI)

0558323105    0558324777    Riferimenti: MASINI/CARLA

Pontassieve
Prezzo: € 349.000
2
2
98
3



Descrizione:
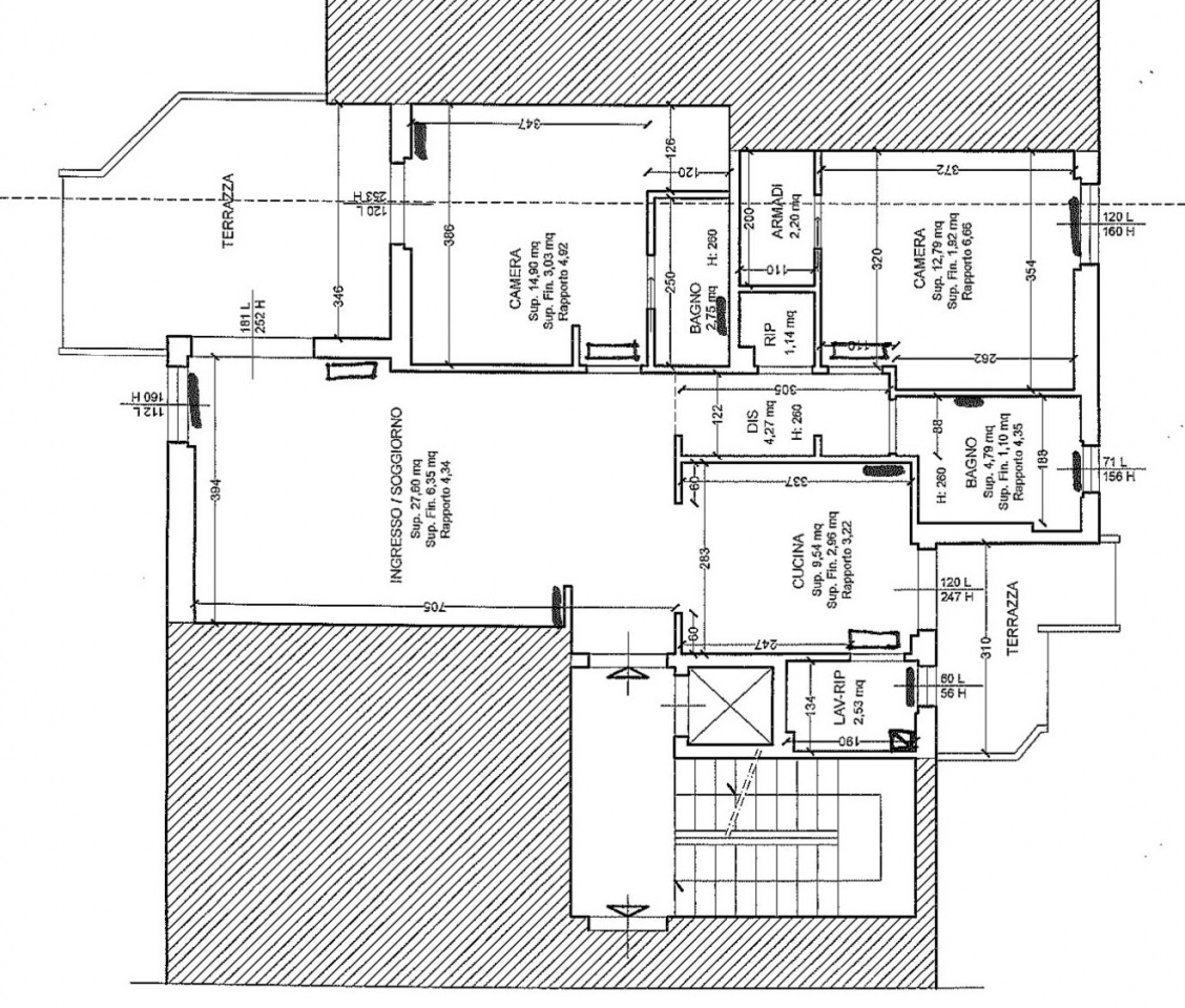
Pontassieve proponiamo in vendita appartamento di ampia metratura perfettamente ristrutturato con materiali di pregio, posto al terzo piano con ascensore in bellissimo condominio.luminoso e panoramico, l'appartamento, si compone di cucina abitabile, soggiorno, ripostiglio-lavanderia finestrato, disimpegno, doppi servizi, due camere matrimoniali con cabine armadio. Termosingolo ed aria condizionata.a completamentoi della proprieta', un balcone ed una deliziosa terrazza abitabile, oltre a cantina e box auto.situato in posizione centrale, vicino a tutti i principali servizi, l'immobile viene proposto in vendita completo di cucina ed armadi.richiesta euro 349.000,00per informazioni e visite contattare area immobiliare pontassieve al numero tra il valdarno fiorentino, la valdisieve e il mugello nelle colline del chianti, vantiamo esperienza e professionalità- nel campo della mediazione immobiliare. Le residenze al centro di panorami di bellezza incomparabile, ville, villette familiari, coloniche, casali, aziende agricole, appezzamenti, fondi e attività- commerciali, sono la nostra specialità-.operiamo in toscana e proponiamo proprietà- di prestigio, offriamo la massima trasparenza e la migliore assistenza nelle trattative di compravendita di proprietà-, consulenze tecnico fiscali, verifiche su immobili, stime e permute. Convenzionati con i principali istituti di credito nazionali, offriamo le migliori condizioni in termini di consulenza, tassi e disponibilità- a finanziamenti agevolati.offriamo inoltre servizi visibilità- a livello locale, nazionale ed internazionale tramite canali internet, riviste, quotidiani ed altri strumenti pubblicitari. Contattateci senza impegno e sapremo indicarvi le migliori occasioni di investimento sul territorio. classe energetica: non dichiarata




Caratteristiche immobile:
Codice inserzione: 1776138000
Rif. Annuncio: VA2026
Provincia: Firenze
Comune: Pontassieve
Superficie (Mq) : 98 Mq.
Tipo immobile: Appartamento
Piano: 3
Camere: 2
Stato al rogito: Libero
Bagni: 2
Terrazze: 1

Costi:
Prezzo € 349.000


Efficienza energetica:
Riscaldamento: autonomo