home page > Annunci immobiliari in Italia > Toscana > Firenze > Pontassieve > Case e ville indipendenti in vendita > Scheda immobile

Case e ville indipendenti in vendita a Pontassieve

COMPILA IL MODULO SOTTOSTANTE PER RICEVERE MAGGIORI INFORMAZIONI







Invia la richiesta ad altre agenzie
Accetto il trattamento dei miei dati



Area immobiliare

Via garibaldi 32
50065 Pontassieve (FI)

0558323105    0558324777    Riferimenti: MASINI/CARLA

Pontassieve
Prezzo: € 460.000
G
4
220
Su più livelli
370 Mq



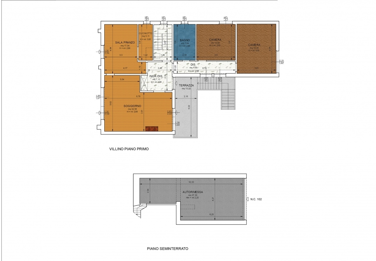
Descrizione:
Nel comune di pontassieve in località- molino del piano a soli 15 minuti da firenze sud vendesi villa unifamiliare di mq 220 disposta su due livelli cosଠcomposta: al piano terra zona pranzo con caminetto, disimpegno, cucina, due camere matrimoniali, un bagno finestrato e due locali uso cantina dispensa;al piano primo ampio soggiorno con caminetto, disimpegno, sala pranzo con cucinotto, due camere matrimoniali, un bagno finestrato.completano la proprietà- un resede circostante l'immobile di mq 350 e un garage di mq 37.possibilità- di creare ulteriori 4 posti auto scoperti fronte casa.per informazioni e visite contattare il numero tra il valdarno fiorentino, la valdisieve e il mugello nelle colline del chianti, vantiamo esperienza e professionalità- nel campo della mediazione immobiliare. Le residenze al centro di panorami di bellezza incomparabile, ville, villette familiari, coloniche, casali, aziende agricole, appezzamenti, fondi e attività- commerciali, sono la nostra specialità-.operiamo in toscana e proponiamo proprietà- di prestigio, offriamo la massima trasparenza e la migliore assistenza nelle trattative di compravendita di proprietà-, consulenze tecnico fiscali, verifiche su immobili, stime e permute. Convenzionati con i principali istituti di credito nazionali, offriamo le migliori condizioni in termini di consulenza, tassi e disponibilità- a finanziamenti agevolati.offriamo inoltre servizi visibilità- a livello locale, nazionale ed internazionale tramite canali internet, riviste, quotidiani ed altri strumenti pubblicitari. Contattateci senza impegno e sapremo indicarvi le migliori occasioni di investimento sul territorio. classe energetica: g - ipe: 0.00kwh/mq anno




Caratteristiche immobile:
Codice inserzione: 1712891824
Rif. Annuncio: 1501
Provincia: Firenze
Comune: Pontassieve
Superficie (Mq) : 220 Mq.
Tipo immobile: Case e ville indipendenti
Piano: Su più livelli
Camere: 4
Giardino : 370 Mq.
Tipologia giardino : Privato
Terrazze: 1

Costi:
Prezzo € 460.000


Efficienza energetica:
Classe energetica: G
Riscaldamento: autonomo