home page > Annunci immobiliari in Italia > Toscana > Firenze > Reggello > appartamenti in vendita > Scheda immobile

Appartamento in vendita a Reggello

COMPILA IL MODULO SOTTOSTANTE PER RICEVERE MAGGIORI INFORMAZIONI







Invia la richiesta ad altre agenzie
Accetto il trattamento dei miei dati



Ciccarelli & partner srl

Via roma figline,25
50063 Figline e Incisa Valdarno (FI)

0559153624    0559152628

Reggello
Prezzo: € 199.000
G
2
1
105
Piano terra



Descrizione:
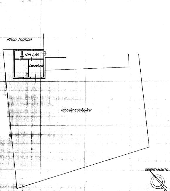
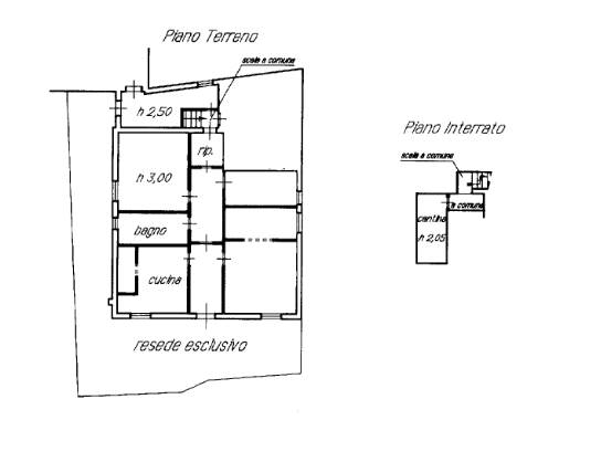
Reggello - zona leccioa pochi min. Dal casello autostradale, vicino alla località di leccio proponiamo appartamento a pianto terra con ingresso indipendente e giardino privatoappartamento piano terra di una palazzina bifamiliare.immobile di circa 100 mq ed è composto da ingresso, soggiorno, due camere matrimoniali oltre servizio.completa la proprietà un garage di circa 48 mq, una cantina ed un giardino/resede di circa 600 mq.libero da subito classe energetica: g




Caratteristiche immobile:
Codice inserzione: 1772679085
Rif. Annuncio: 6092
Provincia: Firenze
Comune: Reggello
Zona: Leccio  
Superficie (Mq) : 105 Mq.
Tipo immobile: Appartamento
Piano: Piano terra
Camere: 2
Garage: Singolo
Bagni: 1

Costi:
Prezzo € 199.000


Efficienza energetica:
Classe energetica: G
Riscaldamento: autonomo