home page > Annunci immobiliari in Italia > Toscana > Firenze > Signa > appartamenti in vendita > Scheda immobile

Appartamento in vendita a Signa

COMPILA IL MODULO SOTTOSTANTE PER RICEVERE MAGGIORI INFORMAZIONI







Invia la richiesta ad altre agenzie
Accetto il trattamento dei miei dati



Home prime di dall'aglio andrea & c. S.a.s.

Via la spezia 2/a
43121 Parma

0521963390    Riferimenti: Andrea 2 Dall'Aglio

Signa
Prezzo: € 122.000
1
1
44



Descrizione:
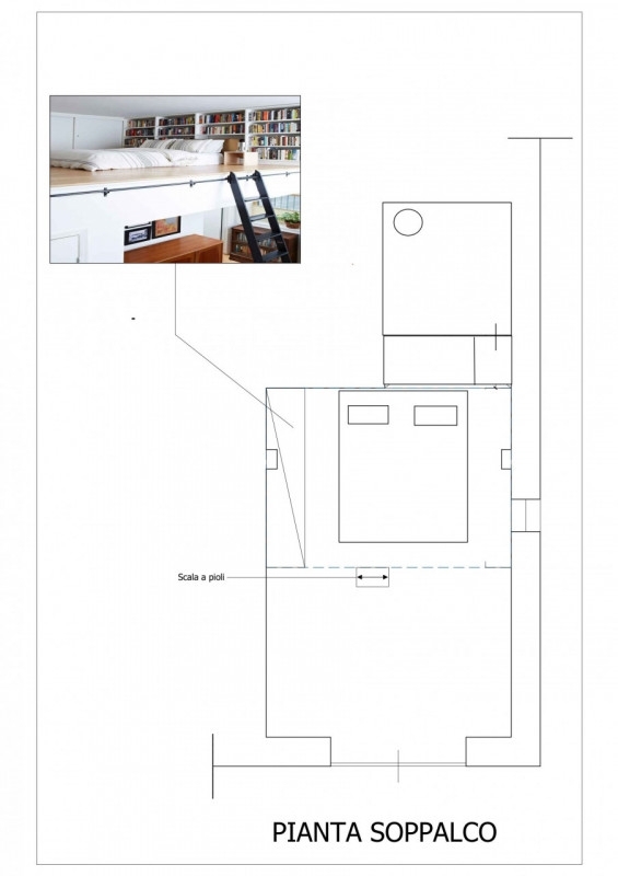
ormai giunto alla completa ristrutturazione si vende unita' abitativa bene rifinita, molto carina, in piccolo contesto con ingresso indipendente. in pronta consegna piccolo loft di 35 mq complessivi oltre a soppalco di 9 mq, antibagno e bagno. L'appartamento si sviluppa con ingresso sulla zona giorno subito collegata a quella dedicata al pranzo e alla cottura, di seguto antibagno predisposto per lavanderia ed infine bagno arredato, sovrastante alla zona pranzo-cottura superficie sopraelevata per la zona notte.il soggiorno si predispone per mobile tv e sofa' entrambi gli spazi potranno essere attrezzati con armadiature a ponte utili al contenimente di vestiario oggettistica ecc. Sono predisposti per impianti speciali presa tv e telefono oltre a prese e interruttori di comando 220v per punti luce a soffitto ed eventuale piantana, separata da una spalletta realizzata in cartongesso, nella parte sottostante al soppalco si sviluppa la zona cottura-pranzo, la stessa offre la possibilita' di poter essere attrezzata a piano d'appoggio, in appendice al mobile della cucina, oltre per mense veloci anche per altri scopi di lavoro, lo stesso spazio offre la possibilita' di posa anche di un tavolo rotondo di modeste dimensioni, per la cucina sono predisposti impianti per lavello, piano cottura a induzione, cappa di aspirazione forno, lavastoviglie e frigorifero.proseguendo troviamo l'antibagno separato da porta a battente, adibito ad uso lavanderia (e' possibile impilare lavatrice e asciugatrice) al di sopra una mensola costituisce uno spazio per riporre ceste o oggetti di uso frequente, il bagno munito di porta scorrevole interno muro per migliorarne lo spazio d'ingombro e' corredato di doccia con box (soffione a soffitto oltre doccino amovibile) vater e bidet sospesi, mobile realizzato in muratura con lavabo semincassato, illuminazione a parete e a soffitto, aspiratore aggiuntivo.sulla superficie del bagno (4 mq) e' stato realizzato un soppalco utile al ricovero di cose di uso anche non frequente.da una scala a pioli posizionata in parete si puo' accedere alla zona notte dove puo' essere posizionato un letto doppio con comodini e como' oltre ad armadiatura bassa, sono predisposti postazione tv oltre illuminazione a faretti incassati nel soffitto.per la riduzione dei consumi energetici e per il contenimento delle spese generate dai costi per le utenze energetiche utili al fabbisogno giornaliero e' stato scelto di usare soltanto energia elettrica con utilizzatori di classe alta, inoltre e' stato realizzato contropareti interne dell'involucro con lo scopo di ottenere minor dispersione riducendo cosi i costi necessari alla climatizzazione degli ambienti, l'impianto di riscaldamento e raffrescamento e' generato da impianto cdz con pompa di calore a split interni gestibili anche attraverso app (smart), per il bagno termoventilatore, scaldabagno da 80 lt, anch' essi intelligenti (smart).l'immobile offre sia la possibilita' di risiedere stabilmente ma si presta benissimo anche per il transitorio, orientato verso il singolo individuo e per le neoconvivenze, invece per l'imprenditore che necessita di un punto d'appoggio; ottimo per l'investitore che vuole affittare anche per brevi periodi, vista la posizione stategica che lo inserisce vicino alla stazione di signa e accanto alla fermata di autobus di linea quali 67-72-83 della soc. At e' molto facile e veloce raggiungere il centro storico di firenze e tutto quanto si collega ad esso, nelle immediate vicinanze supermercati o piccole botteghe, parchi piscine ed altro, un immensa area adibita e gratuita, nei pressi della stazione facilita la possibilita di parcheggiare.signa e cosa cè da sapere......è un comune italiano di 19029 abitanti della città metropolitana di firenze, in toscana.la città di signa è ubicata alla confluenza dei fiumi bisenzio e ombrone nell'arno, la superficie territoriale del comune è di soli 18.8km di cui 2.7 km sono occupati dal parco dei renai, ciò lo rende il 4º comune più densamente abitato della città metropolitana e il 10º della regione.il comune ha avuto una grande fama nazionale e internazionale per la produzione dei cappelli di paglia che gli ha fatto guadagnare il soprannome di 'città della paglia'. Una delle principali chiese del paese è quella di san giovanni battista in cui sono custodite le spoglie della beata giovanna. storiale origini di signa sono incerte. Molto probabilmente esisteva già in tempi antichi, anche se non si sa se sia stata fondata dagli etruschi o dai romani. anche nel basso medioevo se ne hanno scarse notizie : carlo magno donò a uno dei suoi capitani un 'castello di signa', anche se la notizia è controversa. Le chiese plebane locali di san giovanni battista e san lorenzo sono menzionate in un documento del 977/978 d.c. Signa acquisù importanza locale nel xiv secolo dopo la costruzione di un vicino ponte, l'unico nella zona a consentire il passaggio dell'arno. Fu conquistata dal condottiero castruccio castracani ed è menzionata anche nella divina commedia di dante alighieri . Signa divenne un importante centro artigianale nel xix secolo.   chiesechiesa di san giovanni battista (o della beata)la chiesa di san giovanni battista, chiamata anche pieve della beata si innalza sull'attuale piazza cavour a signa. Fu donata dal vescovo fiorentino rambaldo nel 964. Nel corso del trecento e del quattrocento acquistò importanza come principale luogo di culto del territorio signese poiché conteneva, e tutt'oggi contiene, le spoglie della beata giovanna. Vari sono gli affreschi attribuiti per lo più al maestro di signa oltre a un fonte battesimale della bottega dei da maiano.  pieve di san lorenzo come per la pieve di san giovanni battista, anche la chiesa di san lorenzo fu donata al capitolo fiorentino dal vescovo rambaldo nel 964. Divenne nel corso dei secoli luogo di sepoltura della più importanti famiglie signesi, come i macci e i lenzi. All'interno sono conservati affreschi che furono assegnati a vari artisti come il maestro di signa e pietro nelli, oltre a varie tele del pittore fiorentino raffaello navesi e ad una cassa lignea attribuita a pietro da gambassi. Negli ultimi anni, durante i lavori di restaurazione della chiesa, sono state trovate alcune tombe alla cappuccina di epoca longobarda. Oggi è anche la sede del corteo storico di signa. chiesa di santa maria in castello situata nella parte più antica della città, il castello, fu donata dalla contessa willa nel 978 d.c. Alla badia fiorentina, fondata proprio dalla medesima in quell'anno. Contiene al suo interno un dipinto di sigismondo coccapani (l'adorazione dei magi, del 1617) e, come già detto in precedentemente, un affresco attribuito a cimabue sulla quale origine oggi si sta discutendo. chiesa di san miniato le origini della chiesa sono ancora sconosciute e contrastanti, poiché alcune fonti fanno risalire la data della costruzione prima del 1000, nonostante i primi documenti siano del 1224




Caratteristiche immobile:
Codice inserzione: 1759373267
Rif. Annuncio: 4635641
Provincia: Firenze
Comune: Signa
Superficie (Mq) : 44 Mq.
Tipo immobile: Appartamento
Camere: 1
Bagni: 1 + lavanderia

Costi:
Prezzo € 122.000


Efficienza energetica:
Riscaldamento: autonomo