Descrizione:
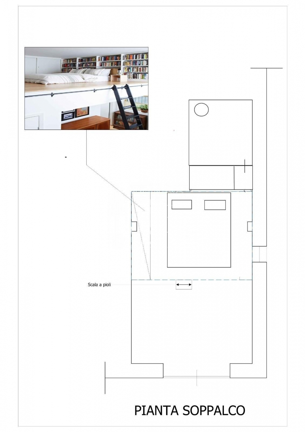
Rif: rif. 2641signa zona stazione: in contesto dinamico, a due passi dal centro e dalla stazione ferroviaria, proponiamo in vendita elegante monolocale di 35 mq circa, recentemente ristrutturato con cura per i dettagli e ottime rifiniture. L'appartamento è dotato di ingresso indipendente è privo di spese condominiali ed è composto da una zona giorno-notte soppalcata predisposta per la zona living al piano terra e la zona notte nel soppalco, bagno con doccia finestrato.ideale per giovani coppie o single che cercano un appartamento comodo e ben ubicato, oppure come investimento per un secondo reddito sicuro e redditizio grazie alla sua posizione vicina alla stazione.libero subito, termosingolo.rif. 2641