home page > Annunci immobiliari in Italia > Toscana > Grosseto > Follonica > appartamenti in vendita > Scheda immobile

Appartamento in vendita a Follonica

COMPILA IL MODULO SOTTOSTANTE PER RICEVERE MAGGIORI INFORMAZIONI







Invia la richiesta ad altre agenzie
Accetto il trattamento dei miei dati



Agenzia immobiliare falorni

Via dei pontani, 3
53100 Siena

0577236219    Riferimenti: Nuova immobiliare Falorni

Follonica
Prezzo: € 285.000
G
2
2
105
3



Descrizione:
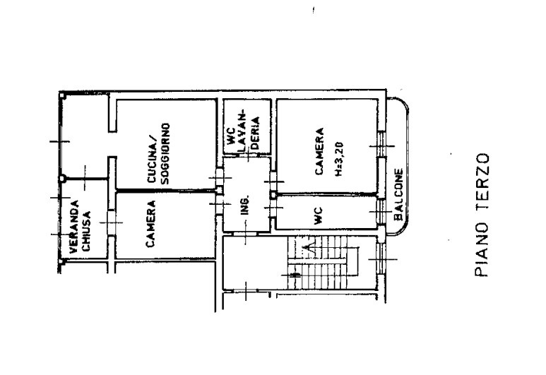
In nostra esclusiva di vendita proponiamo questo interessante appartamento posto nel centro di follonica a circa 100 mt dalla spiaggia e dal lungo mare. L'immobile fa parte di un condominio di 10 unità- ed à posto al piano terzo con ascensore, ingresso ampio, due camere matrimoniali, soggiorno, balcone ed ampia veranda chiusa con cucina abitabile, doppi servizi e cantina. L'immobile molto luminoso risulta in buone condizioni generali e pronto per chi cerca una soluzione comoda e dotata di ampi spazi a pochi metri dalla spiaggia e dai servizi turistici della città-. Classe energetica: g - ipe: 0.00kwh/mq anno




Caratteristiche immobile:
Codice inserzione: 1705552433
Rif. Annuncio: 1083
Provincia: Grosseto
Comune: Follonica
Superficie (Mq) : 105 Mq.
Tipo immobile: Appartamento
Piano: 3
Camere: 2
Arredato:
Stato al rogito: Libero
Bagni: 2

Costi:
Prezzo € 285.000


Efficienza energetica:
Classe energetica: G
Riscaldamento: autonomo