home page > Annunci immobiliari in Italia > Toscana > Livorno > Cecina > appartamenti in vendita > Scheda immobile

Appartamento in vendita a Cecina

COMPILA IL MODULO SOTTOSTANTE PER RICEVERE MAGGIORI INFORMAZIONI







Invia la richiesta ad altre agenzie
Accetto il trattamento dei miei dati



Orizzonti immobiliari di stefano guelfi

Via francesco petrarca, 4
57023 Cecina (LI)

0586.684573    3355272308    Riferimenti: Stefano Guelfi

Cecina
Prezzo: € 80.000
G
2
1
65
Ultimo piano



Descrizione:
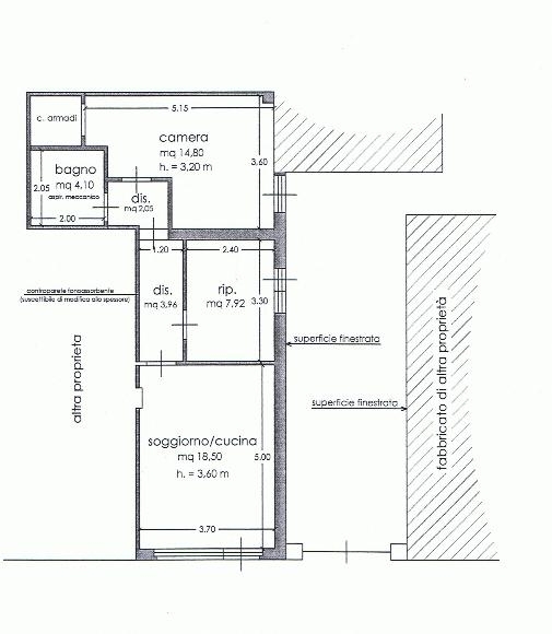
A 200 metri dall'isola pedonale e vicinissimo a tutti i servizi, al piano terra di palazzina, ma con ingresso indipendente, vendesi ampio locale magazzino con possibilità di cambio di destinazione d'uso in civile abitazione. Assenso già rilasciato da parte del comune. La planimetria allegata raffigura lo stato di progetto. Ottima opportunita'. classe energetica: g epi: 185 kwh/m2 anno




Caratteristiche immobile:
Codice inserzione: 1653618719
Rif. Annuncio: A271
Provincia: Livorno
Comune: Cecina
Superficie (Mq) : 65 Mq.
Tipo immobile: Appartamento
Piano: Ultimo piano
Camere: 2
Bagni: 1

Costi:
Prezzo € 80.000


Efficienza energetica:
Classe energetica: G
Indice di prestazione energetica (EPgl): 185 kWh/mq annui
Riscaldamento: autonomo