home page > Annunci immobiliari in Italia > Toscana > Livorno > Cecina > appartamenti in vendita > Scheda immobile

Appartamento in vendita a Cecina

COMPILA IL MODULO SOTTOSTANTE PER RICEVERE MAGGIORI INFORMAZIONI







Invia la richiesta ad altre agenzie
Accetto il trattamento dei miei dati



Tuscania agenzia immobiliare

Corso matteotti 355
57023 Cecina (LI)

0586686414    Riferimenti: Massimo Francalacci

Cecina
Prezzo: € 300.000
A3
2
2
75
Piano terra
2



Descrizione:
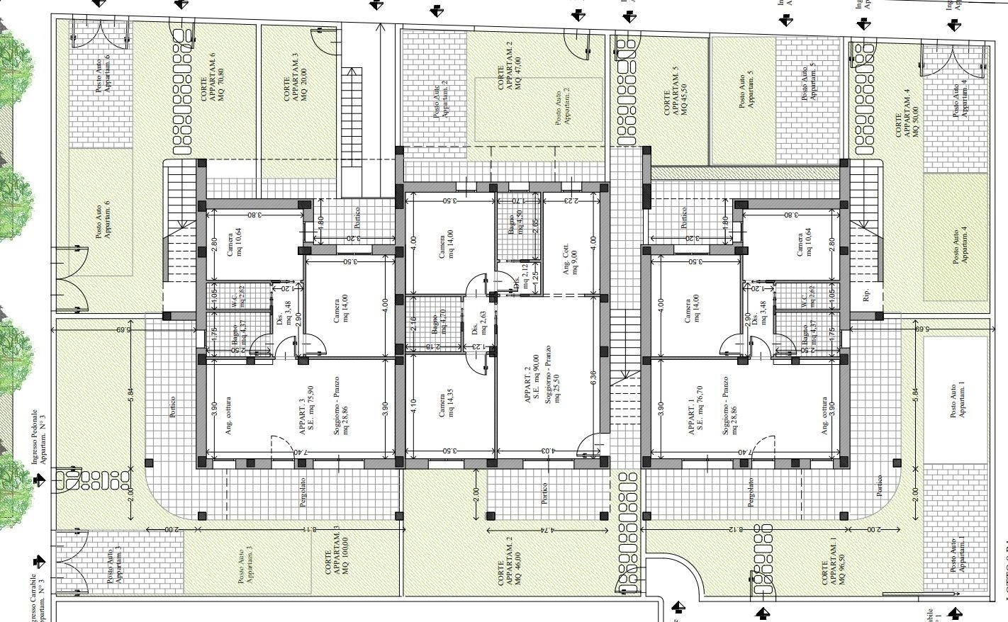
Rif: cecina mare: vendesi appartamenti indipendenti di nuova realizzazione, in contesto di moderna lottizzazione, dove, oltre agli spazi in proprietà esclusiva, si potrà usufruire delle comodità dei parcheggi e del verde pubblico, delle piste ciclabili e pedonali per il collegamento diretto al paese e al mare. In questo fabbricato si propongono appartamenti con ingresso indipendente, giardino e n.2 posti auto, sono disponibili al piano terreno o piano primo. al p.. Terreno : ingresso dal giardino, accesso al pergolato e porticato, ampio soggiorno con zona vetrata, disimpegno, 2 bagni, camera matrimoniale e camera doppia. al p. Primo: giardino, terrazza di 26 mq con pergolato, ampio soggiorno molto luminoso, disimpegno, 2 bagni, camera matrimoniale e camera doppia. Ogni appartamento ha 2 posti auto esclusivi e la cantina interrata di circa 7 mq, oltre ai pannelli fotovoltaici, giardino piantumato compreso di impianto d'irrigazione. consegna prevista per l'estate 2023. In agenzia vi possiamo proporre altre soluzioni indipenpendenti di 5 vani con soggiorno + cucina , 3 camere e 2 bagni. soluzioni da personalizzare. Per qualsiasi chiarimento contattateci al Classe energetica: a3 - rif. 55




Caratteristiche immobile:
Codice inserzione: 1714439878
Rif. Annuncio: 1057809/216/555
Provincia: Livorno
Comune: Cecina
Superficie (Mq) : 75 Mq.
Tipo immobile: Appartamento
Stato immobile: nuovo
Anno costruzione/ristrutturazione: 2022
Piano: Piano terra
Camere: 2
Posti auto scoperti: 2 posti auto
Tipologia giardino : Privato
Bagni: 2
Terrazze: 27

Costi:
Prezzo € 300.000


Efficienza energetica:
Classe energetica: A3
Indice di prestazione energetica (EPgl): 20 kWh/mq annui