home page > Annunci immobiliari in Italia > Toscana > Livorno > Cecina > appartamenti in vendita > Scheda immobile

Appartamento in vendita a Cecina

COMPILA IL MODULO SOTTOSTANTE PER RICEVERE MAGGIORI INFORMAZIONI







Invia la richiesta ad altre agenzie
Accetto il trattamento dei miei dati



Tuscania agenzia immobiliare

Corso matteotti 355
57023 Cecina (LI)

0586686414    Riferimenti: Massimo Francalacci

Cecina
Prezzo: € 300.000
A4
2
1
67
Piano terra
1



Descrizione:
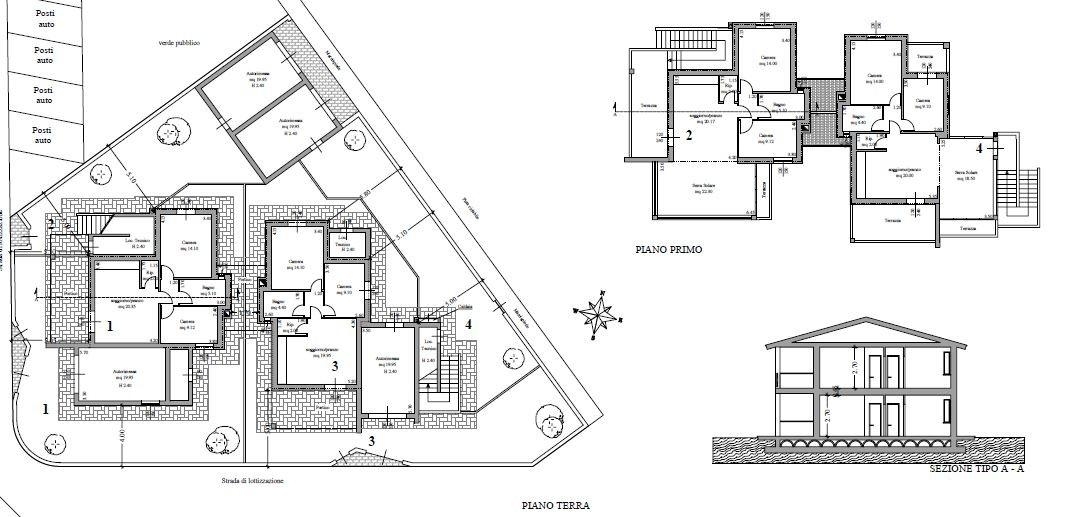
Rif: cecina: nella periferia del paese, vendesi soluzione al piano terra in bifamiliare. al piano terreno, trilocale di 67 mq, composto da soggiorno con angolo cottura, portico di 14 mq, ripostiglio, disimpegno, bagno, camera matrimoniale, camera singola, locale tecnico, giardino di 120 mq, garage di 25 mq. Prezzo € 290.000il fabbricato verrà realizzato con ottimo capitolato, con materiali di ultima generazione a livelli di tamponamenti, infissi, impianti, con presenza di fotovoltaico, riscaldamento a pavimento, caratteristiche che permetteranno di raggiungere i massimi livelli di prestazione energetica.classe energetica prevista a4. rif. 78




Caratteristiche immobile:
Codice inserzione: 1718585303
Rif. Annuncio: 1272989/216/78
Provincia: Livorno
Comune: Cecina
Superficie (Mq) : 67 Mq.
Tipo immobile: Appartamento
Stato immobile: nuovo
Piano: Piano terra
Camere: 2
Garage: Doppio
Posti auto scoperti: 1 posto auto
Tipologia giardino : Privato
Bagni: 1

Costi:
Prezzo € 300.000


Efficienza energetica:
Classe energetica: A4