home page > Annunci immobiliari in Italia > Toscana > Livorno > Cecina > appartamenti in vendita > Scheda immobile

Appartamento in vendita a Cecina

COMPILA IL MODULO SOTTOSTANTE PER RICEVERE MAGGIORI INFORMAZIONI







Invia la richiesta ad altre agenzie
Accetto il trattamento dei miei dati



Immobiliare casa&mare di gani claudio e c. S.a.s.

Via s. Pellico 1
57022 Castagneto Carducci (LI)

0565.745061    0565.746805    335 6226253    Riferimenti: Gani Claudio

Cecina
Prezzo: € 390.000
3
2
100



Descrizione:
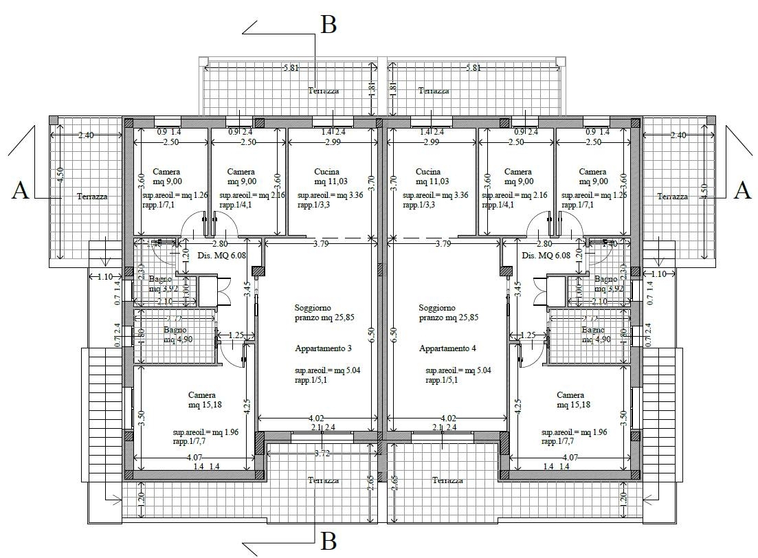
Cecina mare - appartamenti di nuova costruzione con guardino privato e posto auto. proponiamo splendidi appartamenti nel contesto residenziale della nuova lottizzazione 'ex zuccherificio'.l' appartamenti sono inseriti in un fabbricato di sole quattro unita' posti al piano terra e al primo piano.sono composti di ampia e luminosa zona living con cucina a vista, portico o terrazza pranzabile tramite ampia porta finestra a vetri. la zona notte è composta da due camere matrimoniale e una singola. nel disimpegno notte troviamo due bagni.l'appartamenti sono dotati di tutti i confort, riscaldamento autonomo a radiatori alimentato da pompa di calore , split condizionatore e pannello fotovoltaico.completano la proprietà una cantina al piano seminterrato.prezzi a partire da 390000 eu.consegna giugno 2026 classe energetica: a4




Caratteristiche immobile:
Codice inserzione: 1752633150
Rif. Annuncio: CM147
Provincia: Livorno
Comune: Cecina
Zona: Cecina Mare  
Superficie (Mq) : 100 Mq.
Tipo immobile: Appartamento
Camere: 3
Bagni: 2

Costi:
Prezzo € 390.000


Efficienza energetica:
Riscaldamento: autonomo