home page > Annunci immobiliari in Italia > Toscana > Livorno > Cecina > Negozi uffici capannoni in vendita > Scheda immobile

Negozi uffici capannoni in vendita a Cecina

COMPILA IL MODULO SOTTOSTANTE PER RICEVERE MAGGIORI INFORMAZIONI







Invia la richiesta ad altre agenzie
Accetto il trattamento dei miei dati



Orizzonti immobiliari di stefano guelfi

Via francesco petrarca, 2
57023 Cecina (LI)

0586.684573    3355272308    Riferimenti: Stefano Guelfi

Cecina
Prezzo: info in agenzia
C
1
150
Ultimo piano



Descrizione:
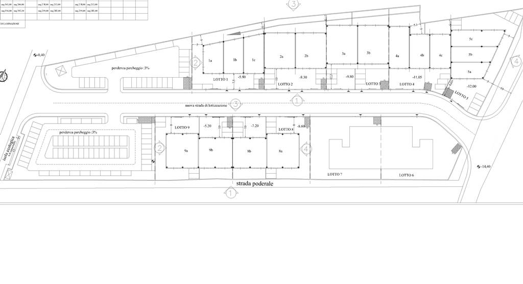
In zona commerciale ed artigianale distante 2 km dal centro di cecina e vicinissima allo svincolo 'cecina centro' della variante aurelia, in lottizzazione in corso di realizzazione, vendonsi costruendi capannoni commerciali ed artigianali con ampio piazzale di proprietà esclusiva. I capannoni sono tutti dotati di servizio igienico e locale spogliatoio. La lottizzazione è dotata di grandi parcheggi. Ottimo capitolato. Finiture di qualità. Superfici a partire da 150 mq. Altezza mt 7,70. Prezzi molto interessanti. possibilità di affitto. classe energetica: c epi: 96,95 kwh/m3 anno




Caratteristiche immobile:
Codice inserzione: 1714112485
Rif. Annuncio: FC12
Provincia: Livorno
Comune: Cecina
Superficie (Mq) : 150 Mq.
Tipo immobile: Negozi uffici capannoni
Stato immobile: nuovo
Piano: Ultimo piano
Bagni: 1

Costi:
Prezzo info in agenzia


Efficienza energetica:
Classe energetica: C
Indice di prestazione energetica (EPgl): 96.95 kWh/mc annui