home page > Annunci immobiliari in Italia > Toscana > Lucca > Borgo a Mozzano > Negozi uffici capannoni in vendita > Scheda immobile

Negozi uffici capannoni in vendita a Borgo a Mozzano

COMPILA IL MODULO SOTTOSTANTE PER RICEVERE MAGGIORI INFORMAZIONI







Invia la richiesta ad altre agenzie
Accetto il trattamento dei miei dati



Quimmo agency

Via galileo galilei 6
48018 Faenza (RA)

0299944698

Borgo a Mozzano
Prezzo: € 72.500
G
2
130



Descrizione:
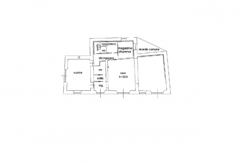
In vendita una interessante porzione di fabbricato adibito a ristorante/pizzeria, situato al piano terra di un edificio residenziale. L'immobile si trova in una zona tranquilla e periferica, caratterizzata da case isolate, di diecimo a soli 6 km da borgo a mozzano. Al suo interno, l'unità si sviluppa con un accogliente ingresso che conduce a due ampie sale, ideali per la ristorazione, una cucina funzionale, e un comodo antibagno con bagno. Inoltre, dispone di un disimpegno, un locale dispensa, uno spogliatoio, un secondo antibagno e bagno. Un piccolo resede comune completa l'immobile, mentre la possibilità di parcheggiare direttamente lungo la strada offre praticità a clienti e personale. Il riscaldamento è autonomo, garantito da una caldaia muraria esterna alimentata a gpl. L'immobile è in buono stato manutentivo, pronto per essere utilizzato o trasformato secondo le proprie necessità.si segnala che la proprieta' valuta anche proposte di locazioneultima ristrutturazione anno 2005classe energetica 'g'superficie lorda: 130 mqsuperficie sala ristorazione 50 mqpiena proprietàc/1 (cf): foglio 21 - particella 409 subalterno 8il prezzo è da intendersi iva esclusa (tipicamente aliquota pari al 22%). La proprietà si rende disponibile all'applicazione del reverse charge iva.




Caratteristiche immobile:
Codice inserzione: 1757386390
Rif. Annuncio: 24359
Provincia: Lucca
Comune: Borgo a Mozzano
Superficie (Mq) : 130 Mq.
Tipo immobile: Negozi uffici capannoni
Stato immobile: usato
Bagni: 2

Costi:
Prezzo € 72.500


Efficienza energetica:
Classe energetica: G
Riscaldamento: autonomo