home page > Annunci immobiliari in Italia > Toscana > Lucca > Camaiore > Case e ville indipendenti in vendita > Scheda immobile

Case e ville indipendenti in vendita a Camaiore

COMPILA IL MODULO SOTTOSTANTE PER RICEVERE MAGGIORI INFORMAZIONI







Invia la richiesta ad altre agenzie
Accetto il trattamento dei miei dati



Dimensione casa di lara piselli

Via niccolò machiavelli, 22/b - viareggio (lu)
55049 Viareggio (LU)

0584.45930    058445930    3358355049

Camaiore
Prezzo: € 420.000
G
4
2
170
1



Descrizione:
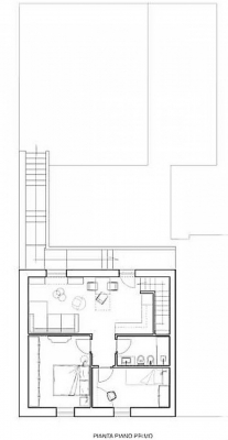
Lido di camaiore a circa un km dal dal mare villa sviluppata su due livelli in contesto signorile.piccola resede su un lato e ampio giardino sul retro.ideale per due nuclei familiari.ingresso soggiorno, cucina, bagno, due camere al piano terra, primo piano soggiorno cottura, camera camerina e bagno!giardino a comune!per visite lara




Caratteristiche immobile:
Codice inserzione: 1713511278
Rif. Annuncio: 35
Provincia: Lucca
Comune: Camaiore
Zona: Lido di Camaiore  
Superficie (Mq) : 170 Mq.
Tipo immobile: Case e ville indipendenti
Camere: 4
Posti auto scoperti: 1 posto auto
Tipologia giardino : Privato
Bagni: 2

Costi:
Prezzo € 420.000


Efficienza energetica:
Classe energetica: G
Indice di prestazione energetica (EPgl): 229.37 kWh/mq annui
Riscaldamento: autonomo