home page > Annunci immobiliari in Italia > Toscana > Lucca > Massarosa > Case e ville indipendenti in vendita > Scheda immobile

Case e ville indipendenti in vendita a Massarosa

COMPILA IL MODULO SOTTOSTANTE PER RICEVERE MAGGIORI INFORMAZIONI







Invia la richiesta ad altre agenzie
Accetto il trattamento dei miei dati



Laltracasa

Via antonio fratti, 362
55049 Viareggio (LU)

0584.581166

Massarosa
Prezzo: € 750.000
4
3
200



Descrizione:
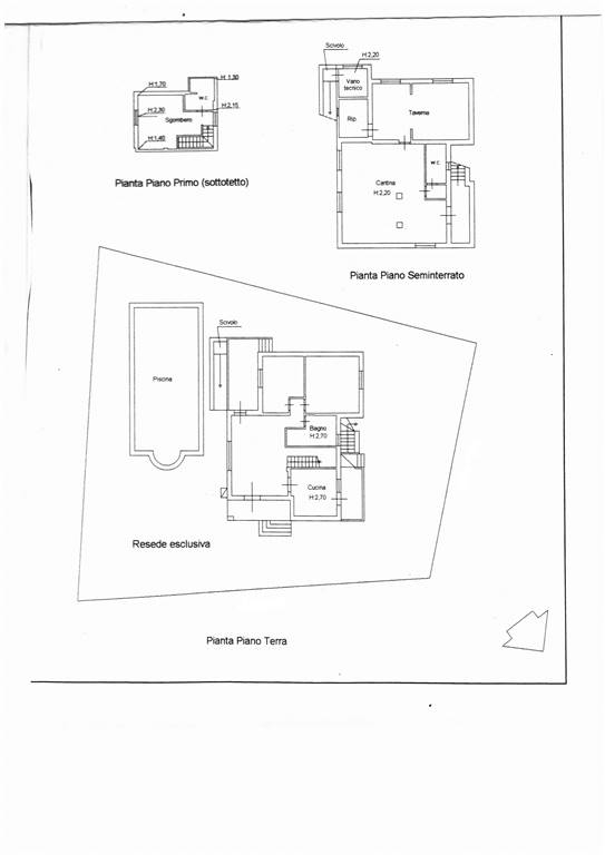
Massarosa - piano di mommio: in prima collina, villa singola con piscina ed ampio giardino su quattro lati. Piano terra rialzato: ingresso da porticato, soggiorno, cucina abitabile, camera matrimoniale, cameretta, bagno con doccia e vasca idromassaggio; piano primo: camera matrimoniale, bagno con doccia e due vani sottotetto uso guardaroba; piano seminterrato: ingresso indipendente dall'esterno, soggiorno con camino, angolo cottura, camera matrimoniale con stanza armadi, bagno con doccia e locale lavanderia. Ottime condizioni, si vende compresi gli arredi. Giardino con casetta in legno, barbeque, pozzo ed impianto d'irrigazione automatico. Disponibile anche a permuta parziale. Classe energetica: non indicata epi: 0 kwh/m2 anno




Caratteristiche immobile:
Codice inserzione: 1676867443
Rif. Annuncio: 017932
Provincia: Lucca
Comune: Massarosa
Zona: Piano di Mommio  
Superficie (Mq) : 200 Mq.
Tipo immobile: Case e ville indipendenti
Camere: 4
Arredato:
Bagni: 3
Terrazze: 1

Costi:
Prezzo € 750.000


Efficienza energetica:
Riscaldamento: autonomo