home page > Annunci immobiliari in Italia > Toscana > Lucca > Massarosa > Case e ville indipendenti in vendita > Scheda immobile

Case e ville indipendenti in vendita a Massarosa

COMPILA IL MODULO SOTTOSTANTE PER RICEVERE MAGGIORI INFORMAZIONI







Invia la richiesta ad altre agenzie
Accetto il trattamento dei miei dati



Agenzia il nido s.r.l.

Via sarzanese, 8113 - massarosa (lu)
55054 Massarosa (LU)

0584.99511

Massarosa
Prezzo: € 278.000
A1
2
2
90
1



Descrizione:
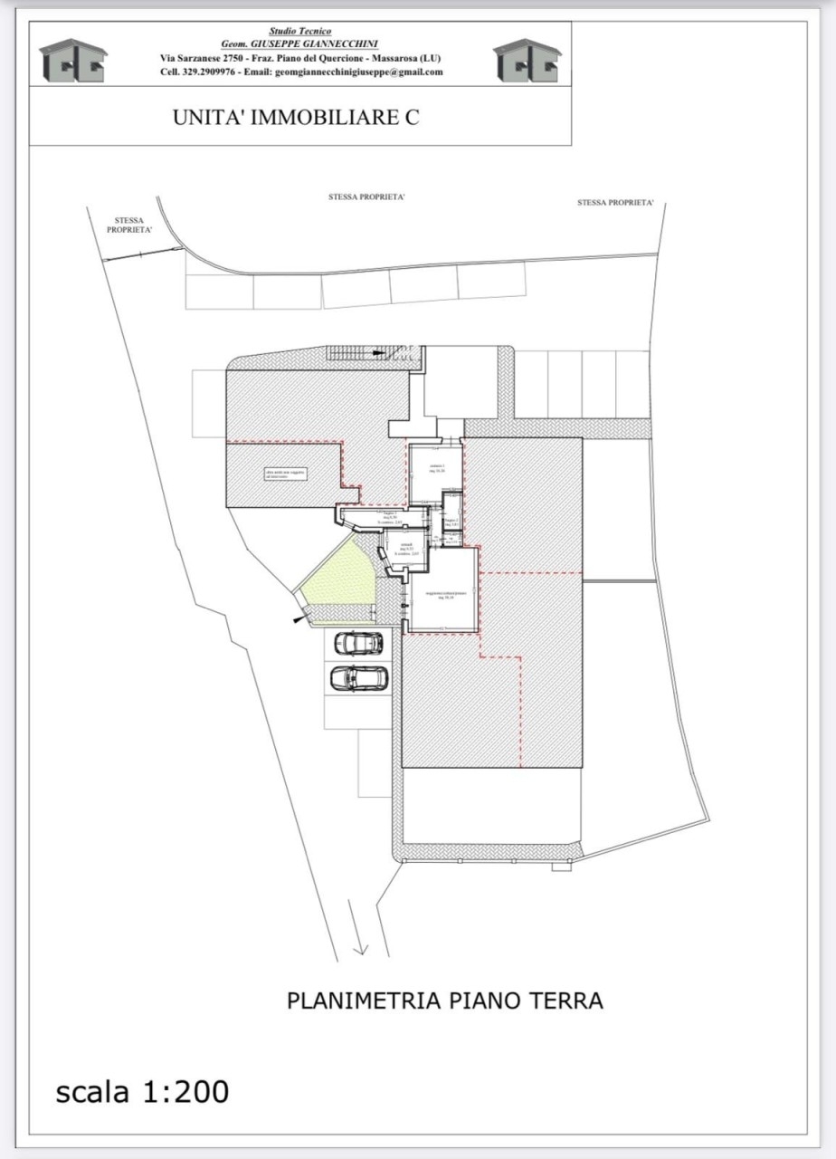
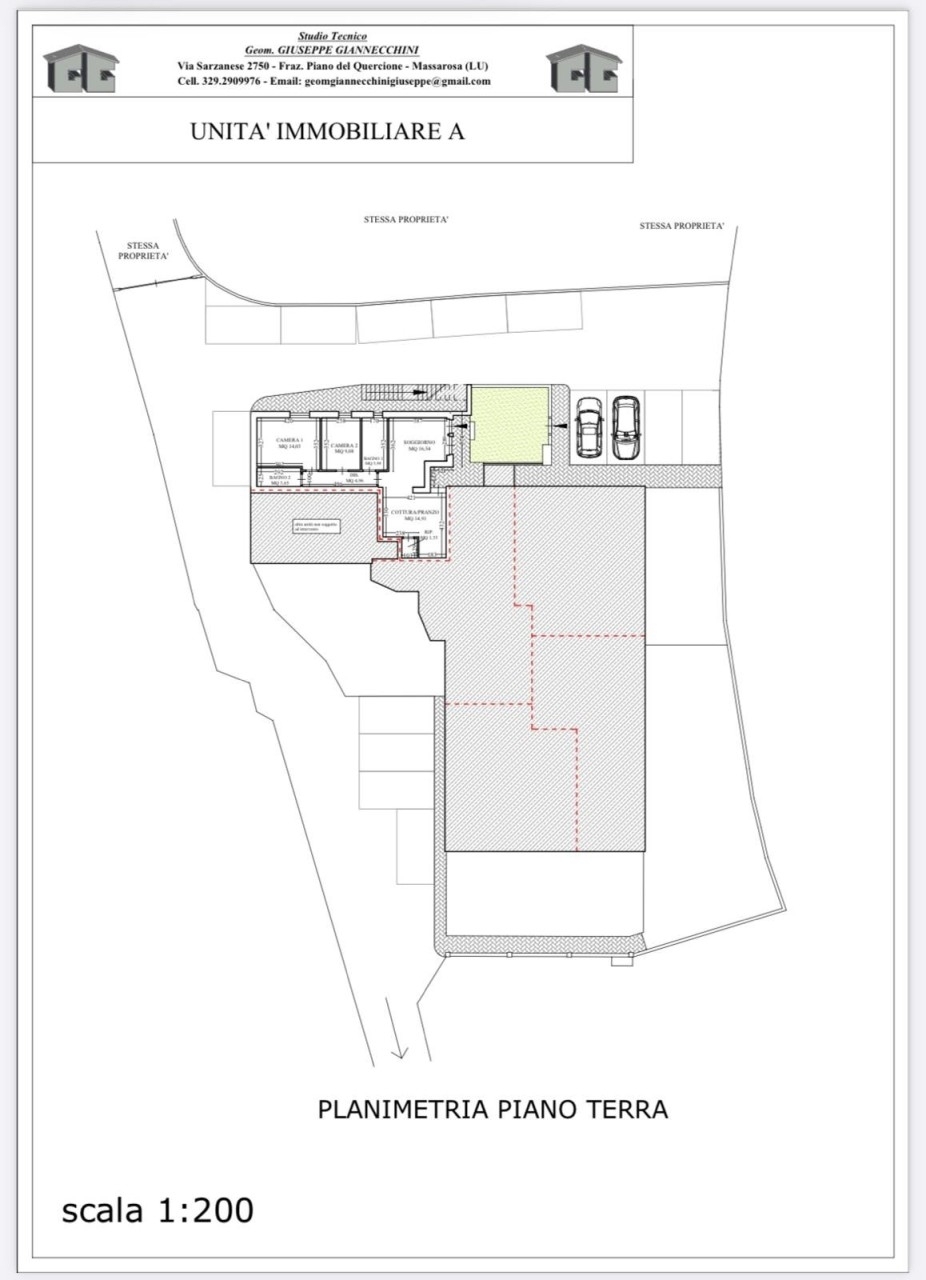
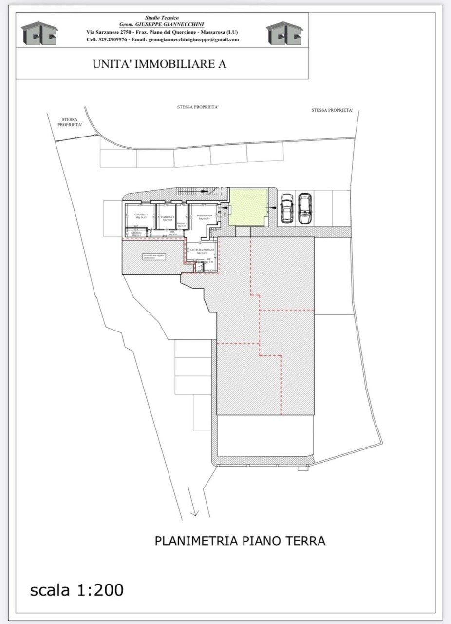
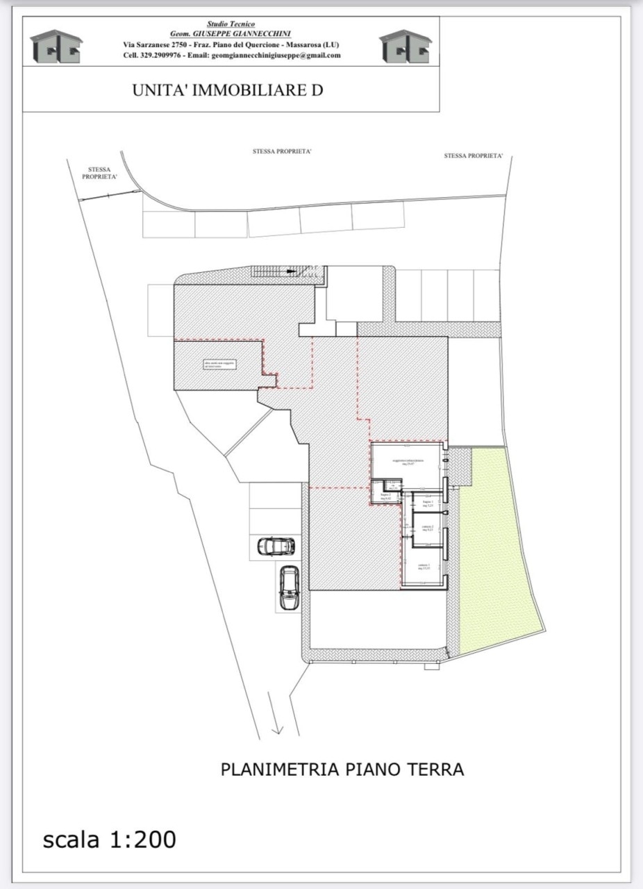
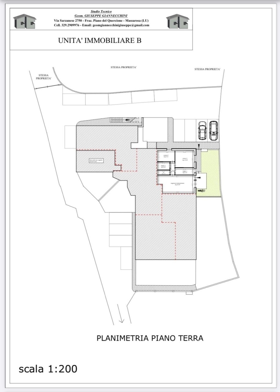
Massarosa stiava in nuovo complesso residenziale in completa ristrutturazione vicino al centro del paese, villette indipendenti sviluppate tutte su piano terra. Si compongono da ampio soggiorno d' ingresso, cucina a vista, disimpegno, due camere, doppi servizi e ripostiglio. Giardino e due posti auto esclusivi. Possibilità di personalizzare gli interni e scelta dei materiali.




Caratteristiche immobile:
Codice inserzione: 1758871269
Rif. Annuncio: vs157
Provincia: Lucca
Comune: Massarosa
Zona: Stiava  
Superficie (Mq) : 90 Mq.
Tipo immobile: Case e ville indipendenti
Camere: 2
Posti auto scoperti: 1 posto auto
Tipologia giardino : Privato
Bagni: 2

Costi:
Prezzo € 278.000


Efficienza energetica:
Classe energetica: A1
Indice di prestazione energetica (EPgl): 65 kWh/mq annui
Riscaldamento: autonomo