home page > Annunci immobiliari in Italia > Toscana > Massa-Carrara > Carrara > Case e ville indipendenti in vendita > Scheda immobile

Case e ville indipendenti in vendita a Carrara

COMPILA IL MODULO SOTTOSTANTE PER RICEVERE MAGGIORI INFORMAZIONI







Invia la richiesta ad altre agenzie
Accetto il trattamento dei miei dati



CASA OK Agenzia immobiliare

Viale Zaccagna 13
54033 Carrara (MS)

0585.855813    0585.855813    3282050520    Riferimenti: Lina

Carrara
Prezzo: € 180.000
G
3
2
230
Su più livelli
2260 Mq



Descrizione:
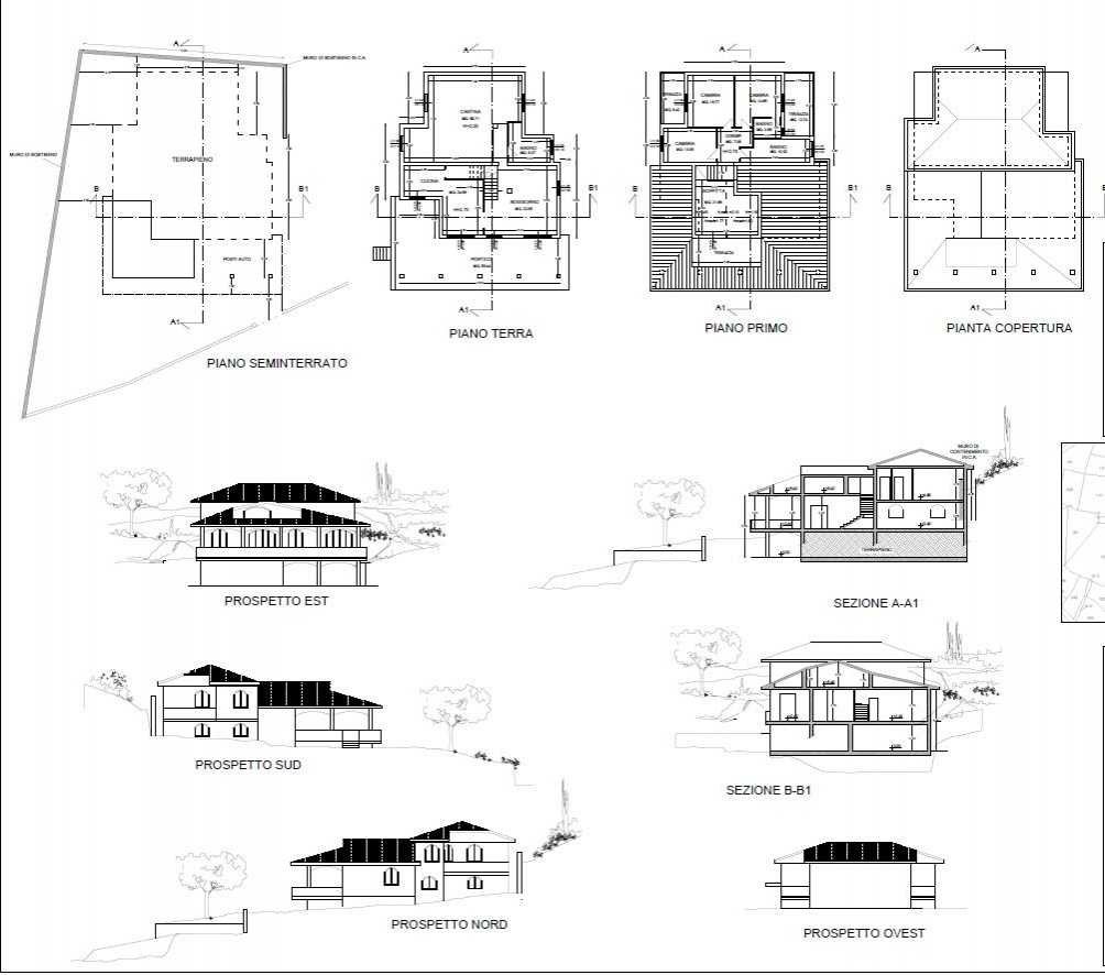
A Carrara, in località Fontia, vendesi villa indipendente di nuova costruzione, immersa nel verde con bellissima vista panoramica. L'immobile di circa 230 mq, si sviluppa su più livelli: cantina di circa 20 mq al piano seminterrato con porticato, piano terra (zona giorno con splendido portico di 50 mq e taverna), piano primo (zona notte composta di tre camere, due bagni e due belle terrazze), mansarda con terrazza, utilizzabile anche come camera o studio. Esternamente la proprietà è composta da circa 300 mq di prato, 1.500 mq di vigneto e 460 mq di bosco, con possibilità di ricavare diversi parcheggi privati. L'immobile è una nuova costruzione da finire, ma ha già la predisposizione di tutti gli impianti. Oneri di urbanizzazione pagati. Disponibilità immediata.

Servizi nei pressi dell'immobile:
Ristorante/trattoria.




Caratteristiche immobile:
Codice inserzione: 1658667954
Rif. Annuncio: 82V
Provincia: Massa-Carrara
Comune: Carrara
Zona: Fontia  
Superficie (Mq) : 230 Mq.
Tipo immobile: Case e ville indipendenti
Stato immobile: in costruzione
Piano: Su più livelli
Camere: 3
Stato al rogito: Libero
Posti auto scoperti: 3 posti auto
Posti auto coperti: 2 posti auto
Giardino : 2260 Mq.
Tipologia giardino : Privato
Bagni: 2
Terrazze: 4

Costi:
Prezzo € 180.000
Spese condominiali: € 0


Efficienza energetica:
Classe energetica: G
Indice di prestazione energetica (EPgl): 175 kWh/mq annui
Riscaldamento: autonomo